Operating instructions

BISN0029 Page 1
Installation / Operating Instructions
GOOD.BEETER>BOSCH
Continuous Flow Gas Water Heater
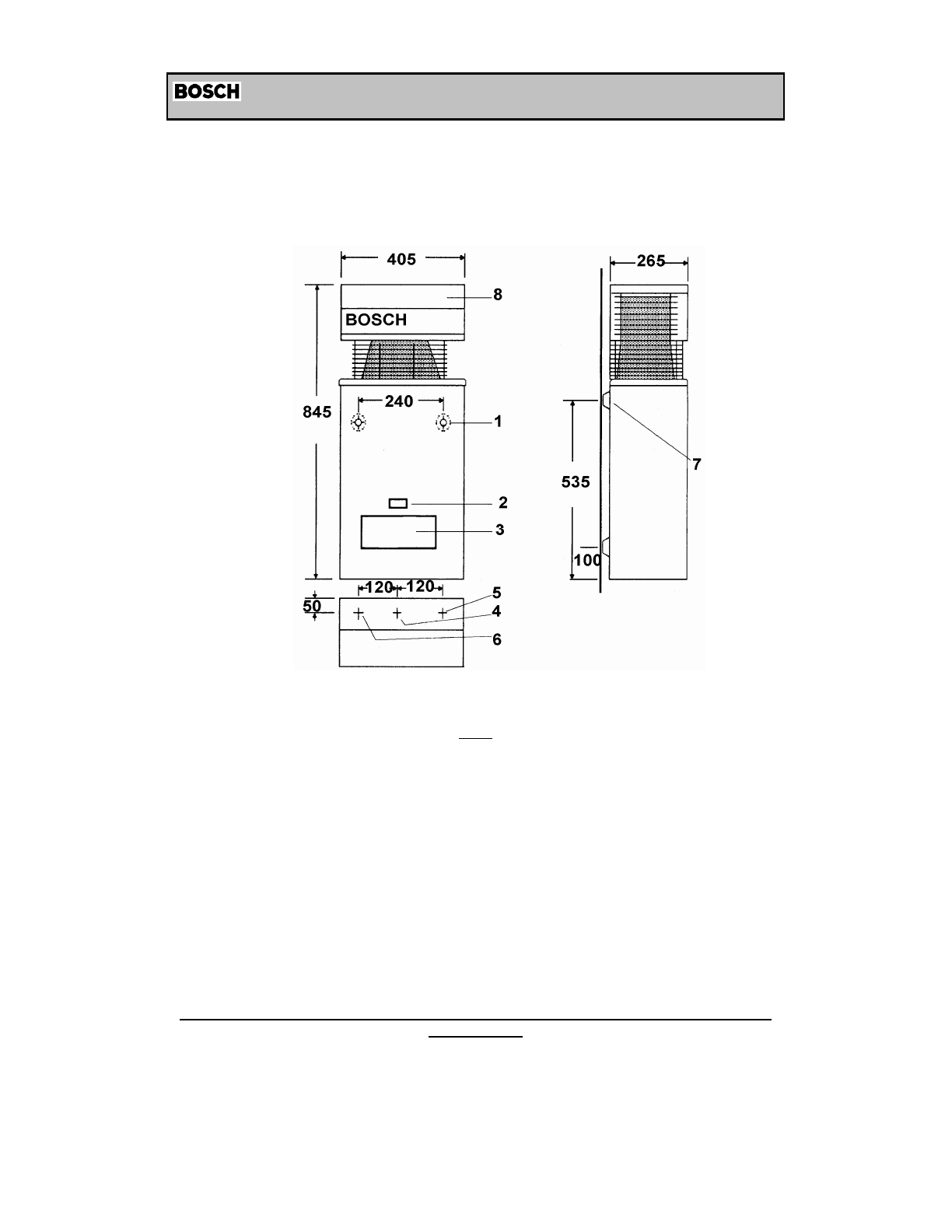
1 Main Cover 5 Cold Water Inlet
2 Inspection Window 6 Hot Water Supply
3 Access Panel 7 Mounting Point
4 Gas Inlet 8 Horizontal Flue
Fig. 1
This appliance must be installed in accordance with the manufacturer’s installation instructions
,
AG 601, NZ 5261, AS3500.4.2
and all Local Water,Building and Gas fitting regulations
To be installed and serviced only by an authorised person
This appliance is not suitable for use as a pool heater
The “authorised installing person” is responsible for :
1. Correct commissioning of this appliance.
2. Ensure unit performs to the specifications stated on the rating label.
3.. Demonstrate operation of unit to customer before leaving.
4. Hand these instructions to customer.
Failure to install this appliance in accordance with these installation instructions may
void warranty
In the interest of continued product improvement, Bosch reserves the right to alter
these specifications without notice
25/10/2011
10P









