User manual

7
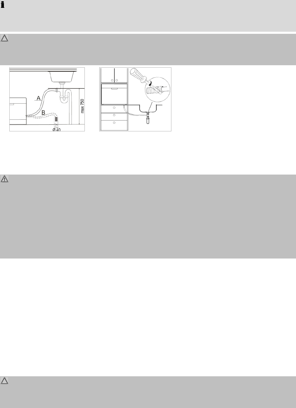
Connect the water drain hose
Connect the water drain hoseConnect the water drain hose
Connect the water drain hose
NOTE
NOTENOTE
NOTE:
::
:
The drain hose has a length of approx. 1.5 m and can extend with a suitable hose and connecting piece to a
length of max. 4 m.
CAUTION
CAUTIONCAUTION
CAUTION:
::
:
In order to prevent backflow of contaminated water, the free end of the hose must not come under the water
level of the drain.
• Connect the drain hose to a drain pipe
with a minimum diameter of
40 mm; alternatively the drain hose
can be fixed directly to the sink.
• Always make sure that the hose is not
bent or squeezed.
• It is allowed to install the hose maximal at a height of 750 mm to the appliance base.
• Secure the hose securely in order to avoid a change in position and with it a water leakage.
Electrical connection
Electrical connectionElectrical connection
Electrical connection
WARNING:
WARNING:WARNING:
WARNING:
• The installation to the mains supply must conform to the local standards and regulations.
• Improper connection may cause to an electric shock
electric shockelectric shock
electric shock!
• Do not use multiple sockets or extension cords.
• It is not allowed to modify the plug provided with the appliance. If the plug does not fit properly to the outlet,
let install a proper outlet by an authorized specialist.
• The accessibility of the power plug must always be ensured in order to disconnect the device from the
power supply in case of an emergency.
• Ensure that your mains power corresponds with the specifications of the appliance. The specifications are
printed on the rating label.
• Connect the mains cable to a properly installed and earthed wall outlet.
• If the plug after installation is not accessible, an all-pole disconnect device with a contact separation of at
least 3 mm must be available to meet the relevant safety regulations.
Prior Using for the first Time
Prior Using for the first TimePrior Using for the first Time
Prior Using for the first Time
Before using your dishwasher
Before using your dishwasher Before using your dishwasher
Before using your dishwasher for the first time:
for the first time:for the first time:
for the first time:
A. Fill the rinse aid dispenser
B. Fill in detergent
CAUTION:
CAUTION:CAUTION:
CAUTION:
• Use only rinse aid and detergent for dishwashers. Other products may damage the appliance.
• Always consider the dosage and storage recommendations on the sales packaging.










