Manual

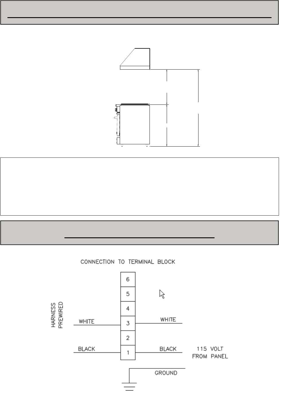
THE CORRECT HEIGHT OF YOUR RE-CIRCULATING HOOD
THE BOTTOM OF THE HOOD SHOULD BE 30" MINIMUM TO 36" MAXIMUM ABOVE THE
COUNTERTOP. THIS WOULD TYPICALLY RESULT IN THE BOTTOM OF THE HOOD BEING 66"
TO 72" ABOVE THE FLOOR. THE BOTTOM OF THE HOOD SHOULD NEVER BE MORE THAN
72" ABOVE THE FLOOR OR MORE THAN 36" ABOVE THE COUNTERTOP. THESE DIMENSIONS
PROVIDE FOR SAFE AND EFFICIENT OPERATION OF THE HOOD. IF FOR SOME REASON THE
HOOD IS MOUNTED GREATER THAN 72” FROM THE FLOOR, IT MUST BE 6” WIDER THAN THE
RANGE.
HEIGHT FROM FLOOR
68"(MIN)-72"(MAX)
167.6cm-182.9cm
COUNTERTOP
HEIGHT ABOVE COUNTERTOP
30"(MIN)-36"(MAX)
76.2CM-91.4CM
RE-CIRCULATING HOOD WIRING
P/N 750306 Page 29










