Manual

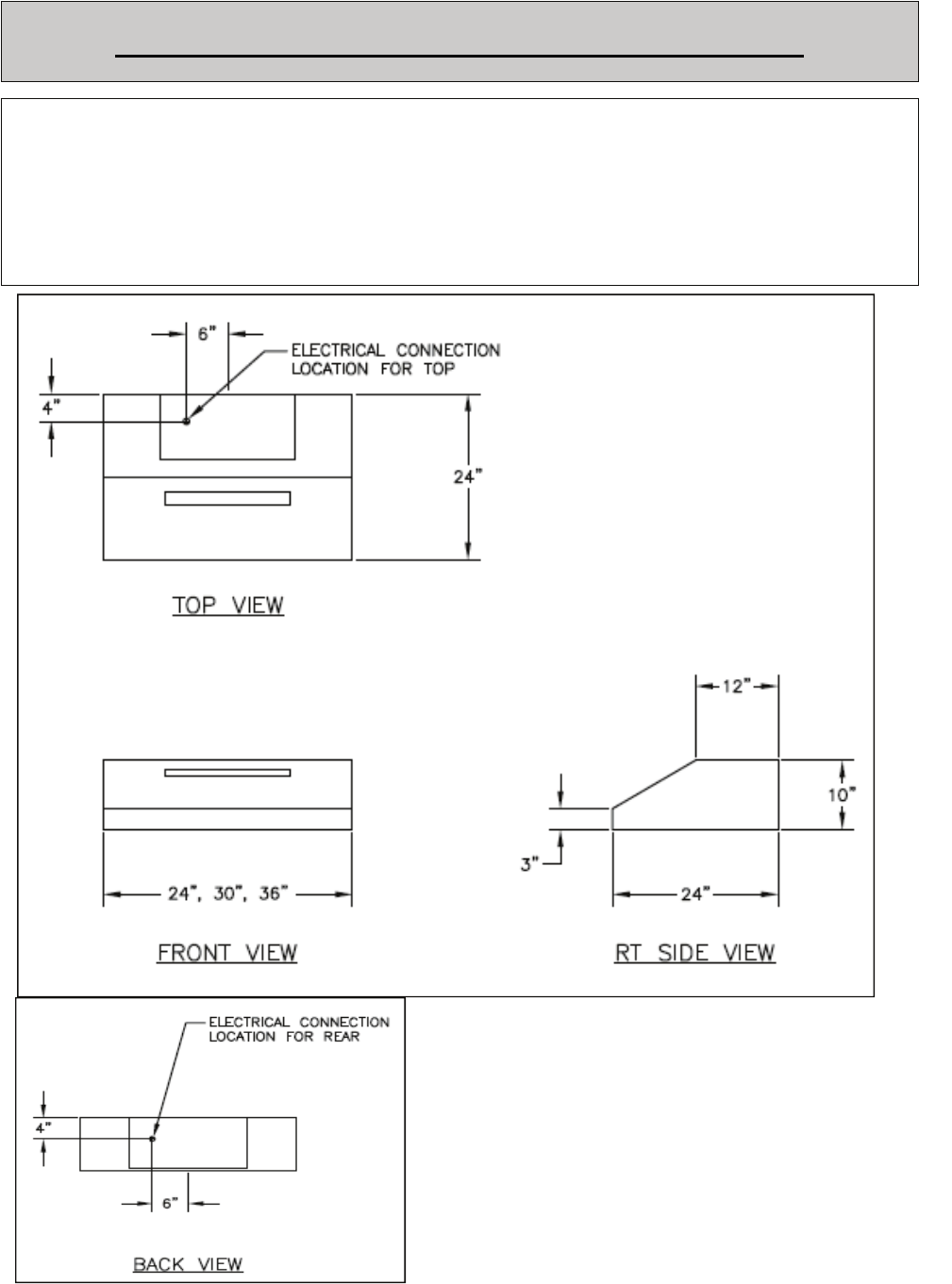
DIMENSIONS OF THE RE-CIRCULATING HOOD
INLET LOCATION FOR THE ELECTRICAL CONNECTION IS LOCATED ON TOP OR REAR.
(SEE DETAIL BELOW)
ELECTRICAL REQUIREMENTS: 15 AMPS AT 120 VOLTS
LIGHT BULBS ARE HALOGEN G9, 120V, 25W
BULBS ARE OPERATED BY A DIMMER SWITCH
BLOWER IS VARIABLE SPEED
P/N 750306 Page 27










