Manual

INSTALLATION GUIDE FOR FLUE (PYRAMID STYLE HOOD)
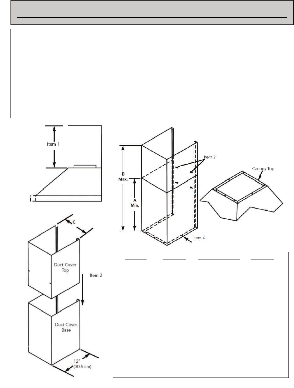
1. MEASURE FROM TOP OF THE CANOPY TO CEILING AND SUBTRACT 1/8" FOR CLEAR-
ANCE.
2. PLACE THE DUCT COVER TOP INSIDE THE DUCT COVER BASE AND LOWER UNTIL DE-
SIRED HEIGHT IS FOUND. (TO ELIMINATE SCRATCHES, MAKE A MARK ON THE DUCT
COVER TOP FOR THE DESIRED LOWERING POINT BY SUBTRACTING 15" FROM THE TO-
TAL HEIGHT NEEDED.)
3. USE THE RETAINING SCREWS TO FASTEN IN PLACE.
4. SLIDE THE DUCT COVER IN PLACE AND FASTEN FROM INSIDE CANOPY USING SHEET
METAL SCREWS.
NOTE: FOR INSTALLATIONS WITH CEILINGS ABOVE 9', USE OPTIONAL CUSTOM FLUES. SEE
PRODUCT LITERATURE FOR DETAILS.
MODEL “A” DIM “B” MAXIMUM “C” DIM
BS-PC30240 15” 27” 12”
BS-PC36240 15” 27” 12”
BS-PC42240 15” 27” 15”
BS-PC48240 15” 27” 18”
BS-PC54240 15” 27” 24”
BS-PC60240 15” 27” 24”
BS-PC60240 15” 27” 24”
P/N 750306 Page 22










