Corp. Ventilation Hood User Manual

BLODGETT OVEN COMPANY
www.blodgettcorp.com
50 Lakeside Avenue, Burlington, VT 05402
Toll Free: (800) 331-5842 • Phone: (802) 860-3700 • Fax: (802) 864-0183
VIB3240-1, VIB3240-2, VIB3240-3
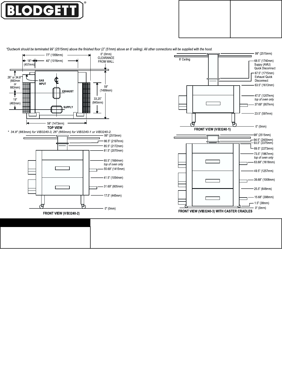
DIMENSIONS:
Floor space 77" (1956mm) W x 59" (1499mm) D
AIRFLOW REQUIREMENTS:
Model Supply Exhaust
Duct Size (all models): 7" x 12" (17.8mm x 305mm) 7" x 12" (17.8mm x 305mm)
VIB3240-1:
CFM: 500 CFM 875 CFM
Static Pressure: 0.04" W.C. (10 Pa) 0.7" W.C. (174 Pa)
VIB3240-2:
CFM: 750 CFM 1150 CFM
Static Pressure: 0.07" W.C. (17 Pa) 1.0" W.C. (249 Pa)
VIB3240-3:
CFM: 1050 CFM 1450 CFM
Static Pressure: 0.14" W.C. (35 Pa) 1.5" W.C. (373 Pa)
MINIMUM ENTRY CLEARANCE:
Largest uncrated component
21" x 40" x 42.7" (533mm x 1016mm x 1085mm)
SHIPPING INFORMATION:
Weight:
VIB3240-1 350 lbs. (160 kg)
VIB3240-2 450 lbs. (205 kg)
VIB3240-3 550 lbs. (250 kg)
Crate size:
VIB3240-1 Palletized size and number not yet finalized
VIB3240-2 Palletized size and number not yet finalized
VIB3240-3 Palletized size and number not yet finalized
Printed in U.S.A. NOTE: FOR COMMERCIAL USE ONLY
NOTE: The company reserves the right to make substitutions of components without prior notice
APPROVAL/STAMP
P/N M10416 Rev D (7/01)
Provide Blodgett In-Vent® ventilation system, engineered for Blodgett model SG3240 conveyor oven. Exterior shall be stain-
less steel on front sides and ducts. Interior shall be of aluminized steel. Baffle grease filters shall be of galvanized steel or
aluminum construction. All exterior panels removable without the use of tools for access to mechanicals and cleaning. Integral
exhaust and make-up air plenums connected to stainless steel duct collars with quick disconnect assemblies. Ventilation sys-
tem shall comply with ANSI/NSF-2 and UL-710. Provide factory authorized assembly and installation at additional cost, per
ANSI/NFPA-96. Ductwork between extension duct collars and rooftop equipment, and rooftop equipment not included.
Universal specification, based on specification sheet for
specific system with specific oven model.
SYSTEM OVEN MODEL
VIB3240-1, VIB3240-2, VIB3240-3 SG3240G
SHORT FORM SPECIFICATIONS


