Specifications
Manuals
Brands
Blodgett Manuals
Kitchen Appliances
Combi
31
32
33
34
35
36
37
38
39
40
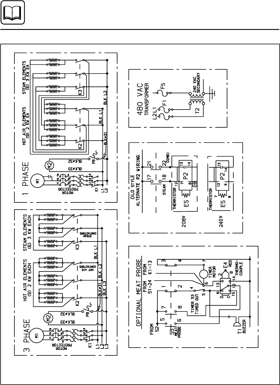
Figure
19
T
e
chnical
Info
rm
ation
30
COS
-101
and
COS
-
101S
Service
Schematics
1
...
...
32
33
34
35
36
...
...
49