BLCM 61 101G Specification

SHORT FORM SPECIFICATIONS: Provide Blodgett Combi model BLCM-61-101G combination-oven/steamer. The BLCM-61-101G has a 2 piece rack with 3.35” (85mm) spacing holds
thirteen 12” x 20” x 2-1/2” deep North American hotel pans. The optional 2 piece rack with 2.5” (65mm) spacing that holds sixteen 12” x 20” x 2” deep Gastronorm pans. Unit shall have
304 stainless steel exterior and interior. Oven doors shall have dual pane tempered viewing window with hinged inner glass for easy cleaning. Multiple cooking modes include hot air,
combi 1 (30-40% steam), combi 2 (60-80% steam), reheating/regenerating, steaming, low-temperature steaming, and preheating. Unit shall have the ability to cook with pressureless
steam, hot air, or combination of steam and hot air. Unit shall have steam injection system. Unit shall have bright halogen lights for superior visibility. Standard control user friendly digital
display with dial, ability to store up to 50 recipe programs with 10 stages per recipe, and time delay start. The reversible 9 speed fan provides optimum baking and roasting results.
Automated CombiWash, closed circuit cleaning system features very low water and detergent consumption and no contact with chemicals. One-year parts and labor warranty. Provide
start-up inspection service by a factory authorized service agent. Provide options and accessories as indicated.
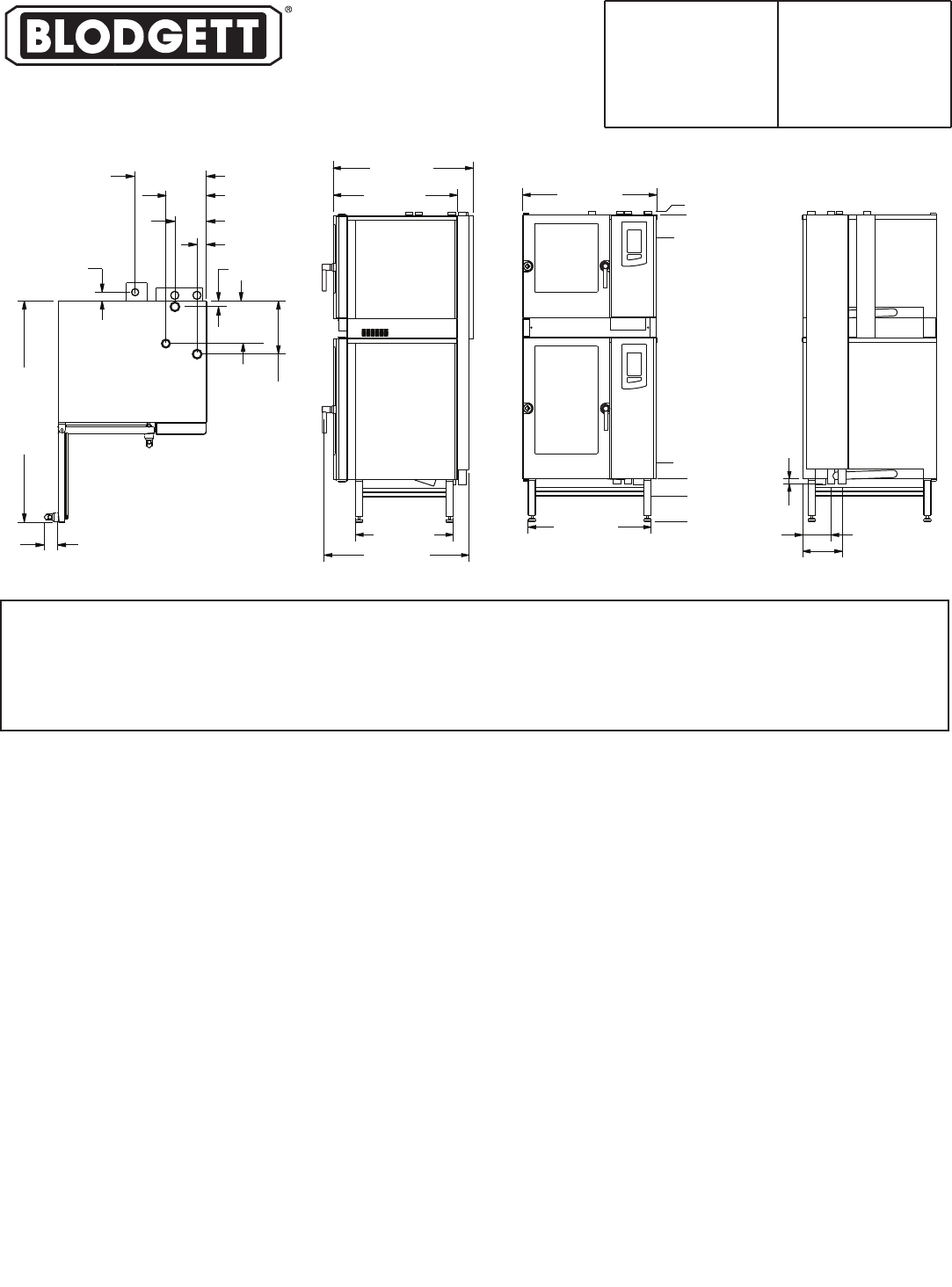
DIMENSIONS ARE IN INCHES [MM]
2.26 [58]
9.72 [247]
17 [433]
52.83 [1342]
3.2 [81]
2 [52]
7.56 [192]
1.42 [36]
10.2
[259]
12.72
[323]
TOP VIEW
BACK VIEW
1.3 [33]
7.52 [191]
10.43 [265]
36.98 [939]
32.72 [831]
38.17 [970]
25.79 [655]
SIDE VIEW
FRONT VIEW
35.39 [899]
32.48 [825]
15.47 [393]
MIN.
WORKING
HEIGHT
11.22 [285]
6.69 [170]
0 [0]
81.85 [2079]
80.87 [2054]
74.96 [1904]
MAX.
WORKING
HEIGHT
BLODGETT OVEN COMPANY
www.blodgett.com • 44 Lakeside Avenue, Burlington, VT 05401 • Phone: (802) 658-6600 • Fax: (802) 864-0183
BLCM-61-101G
Printed in U.S.A.
NOTE: FOR COMMERCIAL USE ONLY
APPROVAL/STAMP
P/N 61487 Rev D (8/15)
GAS SUPPLY (per section):
3/4” NPT
Inlet Pressure:
Natural 3.2-8.0” W.C. static to unit
Propane 5.2-14” W.C. static to unit
Maximum Input:
BLCT-61G 58,000 BTU/hr
BLCT-101G 87,000 BTU/hr
WATER SUPPLY & DRAIN:
Good quality water feed is the responsibility of the owner. Water quality must be within
the following general guidelines.
TDS: 40-125 ppm Hardness: 35-100 ppm pH: 7.0 - 8.5
Silica: <13 ppm Chlorides: <25 ppm Chlorine: <0.2 ppm
Chloramine: <0.2 ppm
The best defense against poor water quality is a water treatment system designed to
meet your water quality conditions. Blodgett offers optional systems from Optipure.
Pressure: 40(min)-50(max) PSI
Connections: 2” drain connection - max. drain temperature 140°F (60°C)
3/4” garden hose cold water
Appliance is to be installed with backflow protection in accordance with federal, state or
local codes.
NOTE: The company reserves the right to make substitutions of components
without prior notice
DIMENSIONS:
Floor space: 35.39” x 38.17” (899 x 970mm)
Unit height: 81.85” (2079mm)
OVEN CLEARANCES:
From combustible and non-combustible construction
Right 2.75” (70mm)
Left 2.75” (70mm)
Back 2” (50mm)
Blodgett recommends and 12” (305mm) be maintained on the control
side for servicing.
MINIMUM ENTRY CLEARANCE (per section):
Uncrated 35.39” (899mm)
Crated 38” (965mm)
SHIPPING INFORMATION:
Approx. weight: 894 lbs. (405 kg)
Crate size:
BLCT-61G 40” H x 47” W x 38” D (1016 x 1194 x 965 mm)
BLCT-101G 40” H x 47” W x 38” D (1016 x 1194 x 965 mm)
POWER SUPPLY (per section):
115V, 9 amp
Blodgett recommends a Pass & Seymour, model 2095, GFCI for this
oven model due to the use of a variable frequency drive.


