Product Specifications

13
The Range: Microwave Ovens & Trim Kit
BMTKX
Flush Stainless Steel Trim Kit to suit all BLANCO
Microwave Ovens
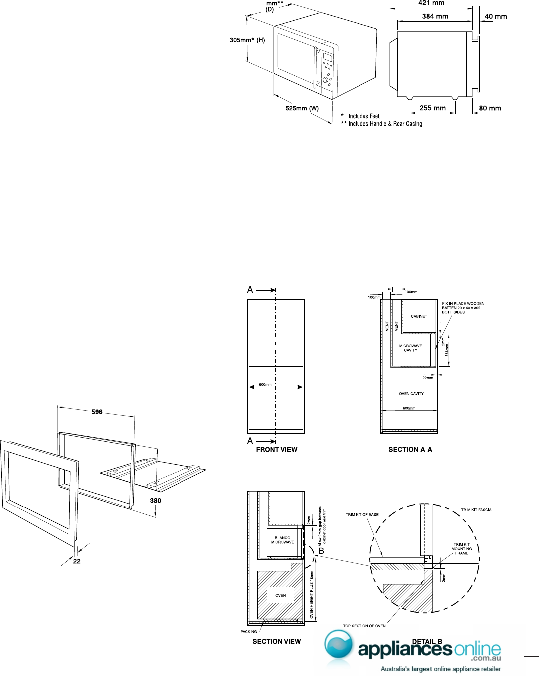
60cm Cabinet
Colour:
Model BMTKX: Stainless Steel
Method of installation: Built in cabinetry
Fascia dimensions: 366H x 596W x 22Dmm
Frame dimensions: 380H x 596W x 22Dmm
BMOC300X
30 Litre Combination Microwave Oven
Colour:
Model BMOC300X: Stainless Steel exterior and cavity
Method of installation: Freestanding or built in with trim kit
External dimensions: 305H x 525W x 478Dmm
Oven cavity dimensions: 219H x 350W x 384Dmm
Turntable: 314mm
Clock: 12 hour (digital)
Timer: 99 minutes, 99 seconds
Power levels: 9
Auto cook: 7menu options
Safety: Child lock system
Power consumption: 240V - 50hz
Rated microwave power
output: 900W Microwave
1400W Convection
1200W Grill
Operation frequency: 2450MHz
Net weight: 22kg
Connected 3 pin power cord: 1.4m
NB: If mounted under bench, these instructions must be
followed for ventilation.
BMTK2830FX
Flush Stainless Steel Trim Kit to suit all BLANCO
Microwave Ovens
60cm Cabinet
Colour:
Model BMTK2830FX: Stainless Steel
Method of installation: Built in cabinetry
Fascia dimensions: 366H x 596W x 22Dmm
Frame dimensions: 380H x 596W x 22Dmm
BMOC300X
30 Litre Combination Microwave Oven
Colour:
Model BMOC300X: Stainless Steel exterior and cavity
Method of installation: Freestanding or built in with trim kit
External dimensions: 305H x 525W x 478Dmm
Oven cavity dimensions: 219H x 350W x 384Dmm
Turntable: 314mm
Clock: 12 hour (digital)
Timer: 99 minutes, 99 seconds
Power levels: 9
Auto cook: 7menu options
Safety: Child lock system
Power consumption: 240V - 50hz
Rated microwave power
output: 900W Microwave
1400W Convection
1200W Grill
Operation frequency: 2450MHz
Net weight: 22kg
Connected 3 pin power cord: 1.4m
478
2008 spex guide version 1.qxp 5/06/2008 3:25 PM Page 13










