
HG-CF-1083 Rev. K - 09.02.11
b50_x50_nm_manual-rev0911
Page 3
HG-CF-1083 Rev. I - 12.02.10 PAGE 3
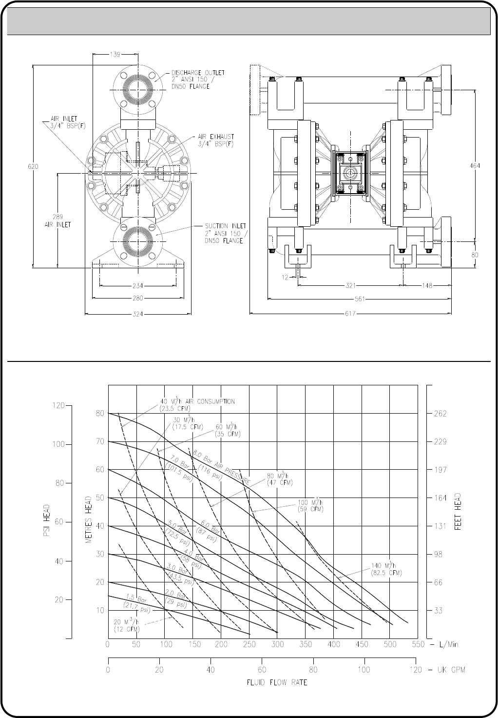
B50 Moulded Pump Performance Curve, performance based on water at ambient temperature.
General Assembly :- B50 Moulded pump, all dimensions +/- 3mm
GA Drawing & Performance Curve