Manual
Table Of Contents

EXHAUST SAFETY WHEN PUMPING HAZARDOUS LIQUIDS
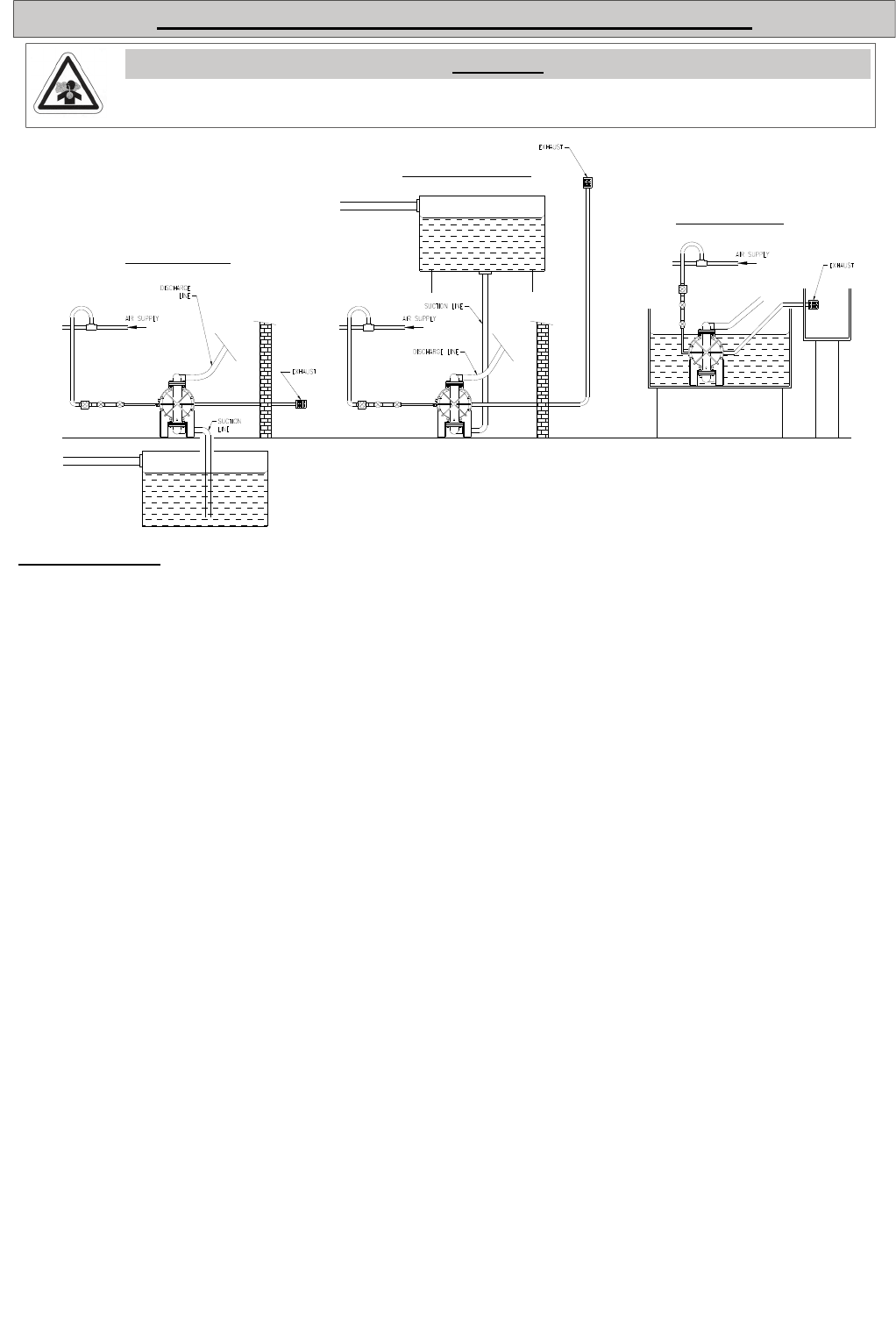
Suction Lift Installation
Flooded Suction Installation
Submerged Installation
Exhaust Safety :-
When a diaphragm fails during operation, pumped liquid can enter and contaminate the air side of the pump. If
diaphragm failure is not severe, i.e. a small split or hole, then the pump can continue to run, with air being
forced into the product being pumped. If however the failure is more serious, then the pump may stop, with
fluid or fumes being expelled through the exhaust. Under these conditions it is recommended that the exhaust
is piped away to a safe area. In standard suction lift conditions this can simply be done by piping from the
exhaust connection to a safe area. Multiple installations can be piped to a common connection, then to a safe
area. In flooded suction conditions the exhaust must be taken to a point higher than the fluid level to prevent
any siphoning away. In submerged conditions ensure exhaust is piped away above fluid level.
In all conditions ensure exhaust outlet is not expelling across a non-conductive surface. The exhaust must not
be placed less than 100mm from any non-conductive surface, as this may generate a propagating brush
discharge resulting in a possible ignition source.
In the event of diaphragm rupture, pumped material may enter the air end of the pump, and be discharged into the atmosphere. If pumping
a product which is hazardous or toxic, the air exhaust must be piped to an appropriate area for safe disposition.
WARNING!
HG-CF-1100 Rev. H - 02.09.11 Page 9










