Manual
Manuals
Brands
Blagdon Pump Manuals
Pumps
X50 Hygienic
1
2
3
4
5
6
7
8
9
10
Table Of Contents
1100-H B5005 HYG.pdf
22_b50_x50_hygienic_manual-rev0911
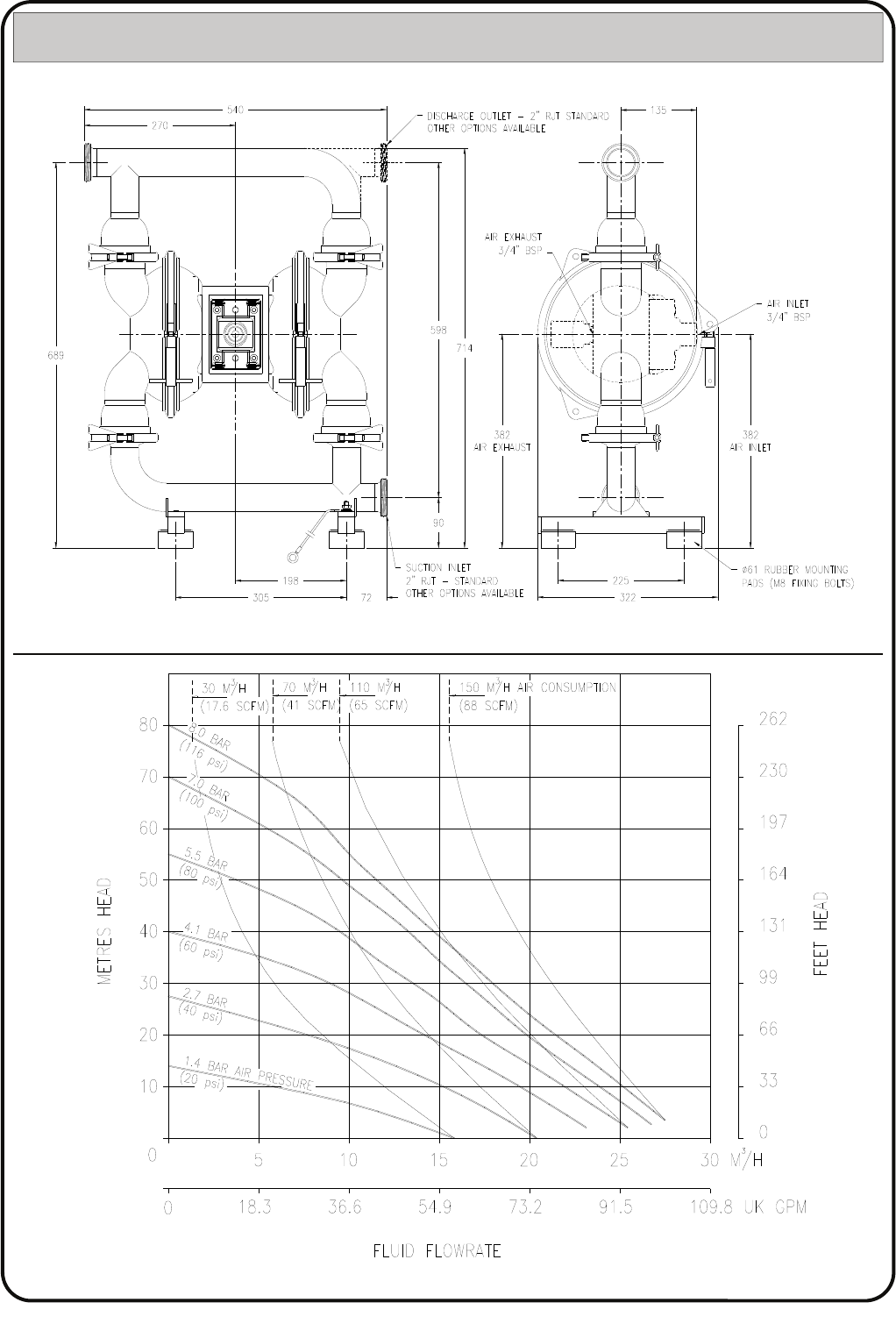
GA Dr
awing & P
erf
or
mance Cur
v
e
B50 Hygienic Pump Performance Curve,
based on water at ambient
temperature
General Assembly :- B50 / X50 Hygienic pump, all dimensions +/- 3mm
HG-CF-1100 Rev. H
- 02.09.11
Page 3
1
2
3
4
5
...
...
12