PH specsheet

Store#
Quantity
Model Specified
Location
Reach-In Warming Cabinets
Models: PH1-1S, PH2-1S, PH1-1S-PT, PH2-1S-PT
(PT) Pass-Thru Models
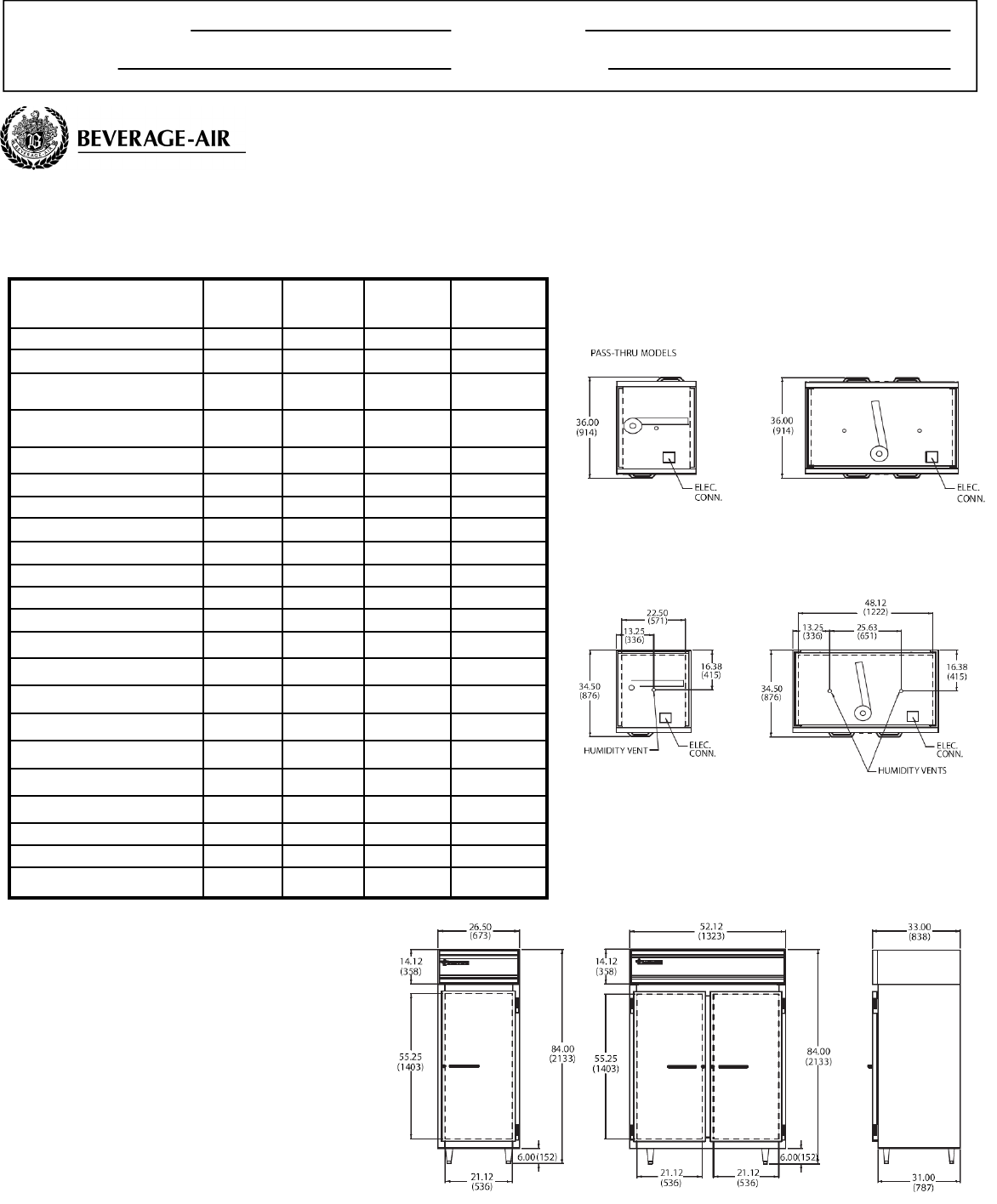
PLAN VIEWS
MODEL PH1-1S
1 Section
PH2-1S
2 Section
PH1-1S-PT
1 Section
Pass-Thru
PH2-1S-PT
1 Section
Pass-Thru
EXTERNAL DIMENSIONAL DATA
Length Overall (inches) / (mm) 26 1/2” / 673 52 1/8” / 1324 26 1/2” / 673 52 1/8” / 1324
Depth Overall (inches) / (mm)
Includes handle(s)
34 1/2” / 876
36” / 914 34 1/2” / 876
36” / 914
Height Overall— (inches) / (mm)
Includes adjustable legs
84” / 2134 84” / 2134 84” / 2134 84” / 2134
Number of doors 1 2 2 4
Depth with Door Open 90
o
58 1/2” 65 1/4” 84 5/8” 98 1/8”
Clear Door Width 21 1/8” 21 1/8” 21 1/8” 21 1/8”
Clear Full Door Height 55 1/4” 55 1/4” 55 1/4” 55 1/4”
INTERNAL DATA
NET Capacity (cubic ft.) / (Liters) 21.5 / 609 46.5 / 1317 23.7 / 671 48 / 1359
Number of Shelves 3 6 3 6
Shelf Area (square feet) 17.1 36 17.1 36
ELECTRICAL DATA
Cabinet Voltage 208-240/60/1 208-240/60/1 208-240/60/1 208-240/60/1
Max. Fuse Size T.D. 15 Amps 20 Amps 15 Amps 20 Amps
Feed Wires 2 2 2 2
Heater Watts per section (@ 240V) 1500 1500 1500 1500
Total Wattage (Heaters & Fan @ 240V) 1500 3000 1500 3000
Total Amperes 6.3 13.0 6.3 13.0
WEIGHT DATA
Gross Weight (Crated lbs) 310 540* 355 620*
Gross Weight (Crated kg) 141 245 161 281
COMMON FEATURES
*Note: Dimensional tolerance +- 1/4” Metric dimensions (MM)
*Note: For approximate Pass-Thru weights add 15%.
NOTE: If cabinet is located
directly against wall an all
around clearance of 2” is
required, and a minimum
clearance of 10” under ceiling.
BEVERAGE-AIR
®
CORPORATION
3779 Champion Blvd. • Winston-Salem, NC 27105 USA • (336) 245-6400 • Fax (336) 245-6453 • (888) 845-9800 • www.beverage-air.com
Specifications are subject to change without prior notice. 06/10