Specification Sheet

BEST Hartford, Wisconsin www.BestRangeHoods.com 800-558-1711
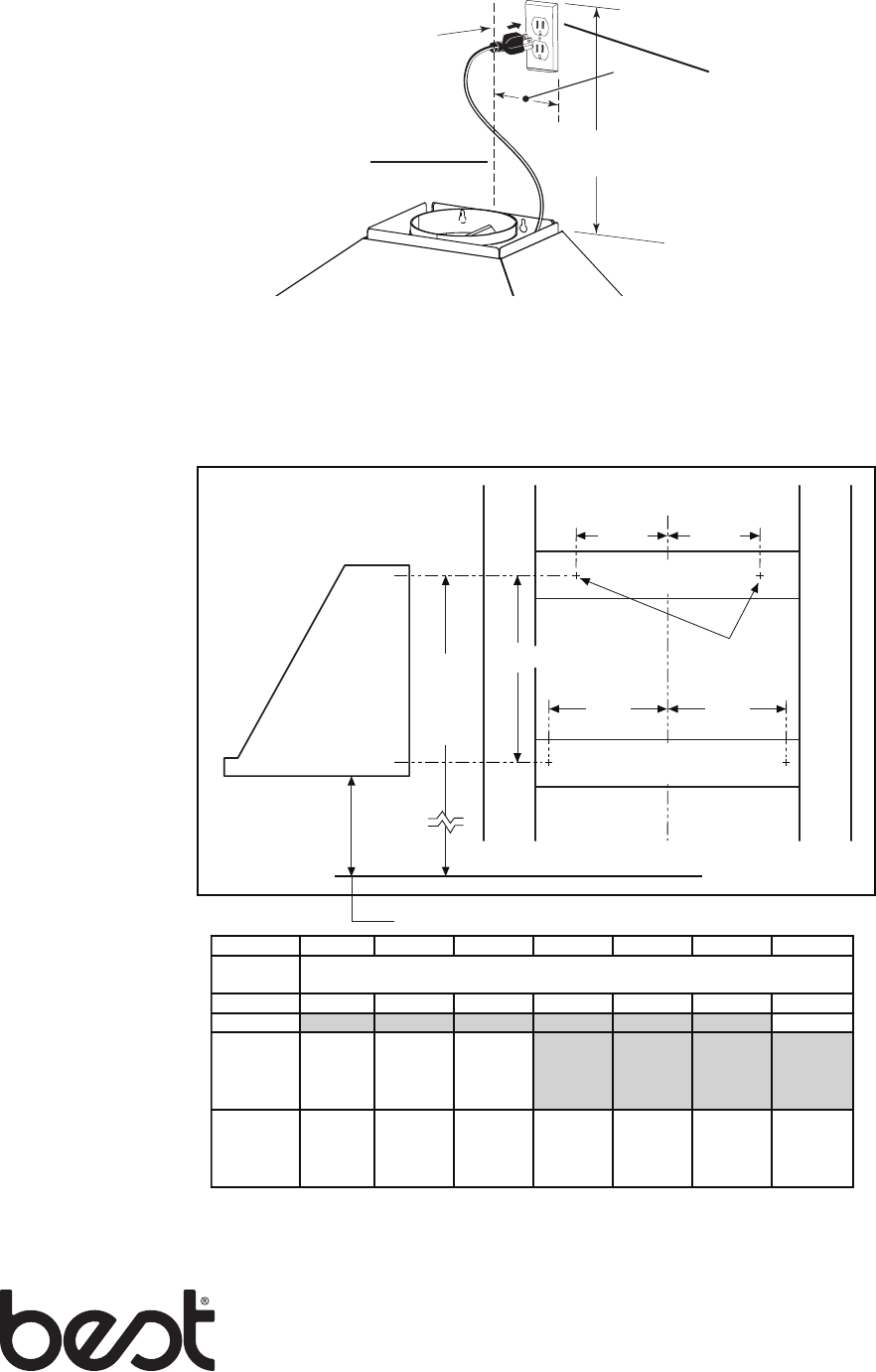
WTT32I30SB, WTT32I36SB, WTT32I42SB MOUNTING
WTT32
I30SB, WTT32I36SB, WTT32I42SB WIRING
24”
MAX.
HOOD
CENTERLINE
4
3
/
4
”
12
3
/
8
”
24” TO 36”
ABOVE
COOKTOP
CENTER LINE OF
DUCT AND HOOD
120 VOLT 60 HZ
GROUNDED WALL OUTLET -
OFFSET FROM DUCT CENTER LINE
(STAY WITHIN 9½” DIMENSION)
C
L
36” HIGH COOKTOP
11
3
/4 ”
6
3
/8 ”
4
3
/4 ”
4mm x 38mm
SCREWS
HERE
A
SEE
CHART
BELOW
4
3
/4 ”
6
3
/8 ”
STRUCTURAL
FRAMING
STRUCTURAL
FRAMING
HOOD
24" 25"26" 27" 28"29" 30"
Ceiling
Height
8 Feet 37-1/8" 38-1/8" 39-1/8" 40-1/8"41-1/8"*42-1/8"*43-1/8"
9 Feet
9 Feet
with
AEWTT32SB
10 Feet
with
AEWTT32SB
* Not applicable for non-duct installation.
** For non-duct installation, use upper flue from AEWTT32SB and lower flue from standard hood.
Desired Hood Distance (Above 36" High Cooktop)
43-1/8"
Upper Mounting Screws Location (Distance above 36" High Cooktop)
(Dimension “A”)
**37-1/8" **38-1/8" **39-1/8"
37-1/8" 38-1/8" 39-1/8" 40-1/8"41-1/8"42-1/8" 43-1/8"
NOTE: A clock outlet can be used to
minimize clearance related issues
with the range hood plug.



