Installation Instructions

38
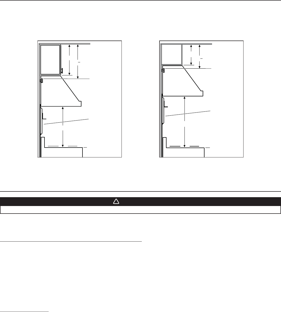
2. MEDIDAS
A continuación se muestran las dimensiones para las instalaciones más comunes.
Para un funcionamiento adecuado, la campana ha de estar a una distancia mínima de 24 pulgadas con respecto a la superficie
sobre la que se cocina, y a una máxima de 36 pulgadas para que pueda captar bien las impurezas que se desprenden al cocinar.
Si se utilizan distancias superiores a 36 pulgadas, el instalador y el usuario son responsables de los posibles problemas.
3. PREPARACIÓN DE LA INSTALACIÓN
NOTA: Antes de comenzar la instalación, verificar el contenido de la caja. Si alguna pieza falta o está dañada, póngase en contacto con
el fabricante.
Retire el juego de instalación del interior de la campana.
Compruebe que la campana venga con los siguientes componentes:
- Regleta de montaje (atornillada en la parte trasera de la campana)
- Manual de instalación
- Accesorios:
Filtros híbridos (2 para las campanas de 30 pulg. de anchura, 3 para las de 36 pulg., 42 pulg. y 48 pulg. de anchura, 4 para las
de 54 pulg. y 60 pulg. de anchura)
Bombillas halógenas protegidas (base de tipo GU10, 120 V, 50 W) (2 para las campanas de hasta 36 pulg. de anchura,
4 para las de 42 pulg. a 60 pulg. de anchura)
Bolsa con piezas:
4 tornillos de cabeza plana n.° 10 de 2 pulg., 8 tornillos n.° 8 de 3/4 pulg., 4 tuercas n.° 10-32, 2 dispositivos de sujeción mural,
2 arandelas de 3/16 pulg. de diámetro interior x 3/4 pulg. de diámetro exterior
Piezas vendidas aparte:
- Ventilador interior modelo iQ6, P3 o P6 (llevan placa del ventilador y adaptador y dispositivo de cierre redondo de 8 pulg.)
- Ventilador interior modelo iQ12 o P12 (llevan placa del ventilador y dispositivo de cierre redondo, vertical y en línea de 10, modelo 421)
- Conjunto de ventilador en línea modelo ILB3, ILB6, ILB9 o ILB11 (todos llevan cambio(s) de sección y placa de ventilador)
- Conjunto de ventilador exterior modelo EB6, EB9, EB12 o EB15 (todos llevan placa de ventilador)
- Tubos, codos, dispositivos de cierre, capuchones murales y para techos. En las páginas 35 y 36 tiene una lista completa de las opciones
de ventilación y los números de modelo.
- Chimenea decorativa opcional, serie AEWP.
ADVERTENCIA
!
Se aconseja llevar anteojos y guantes de seguridad al instalar, reparar o limpiar el aparato.
18”
Gabinete
estándar de
18” de
altura sobre
la superficie
para cocinar
24”
Superficie para cocinar
11
16
19 ”
Parte superior
de la tira de
madera de
montaje
Campana
Placa para
salpicaduras
serie RMP
(opcional)
Techo
estándar
de 8 pies
Superficie para
cocinar estándar
de 36” de altura
HH0021E
INSTALACIÓN DEBAJO UNA ARMARIO ESTÁNDAR
DE 18 DE ALTURA
12”
Intrádos estándar
de 12
- o -
chimenea
decorativa
serie AEWP28
13 ”
36”
11
16
HH0216E
Superficie para cocinar
Parte superior
de la tira de
madera de
montaje
Campana
Placa para
salpicaduras
serie RMP
(opcional)
Techo
estándar
de 8 pies
Superficie para
cocinar estándar
de 36” de altura
INSTALACIÓN CON INTRÁDOS ESTÁNDAR DE 12
O CHIMENEA DECORATIVA OPCIONAL SERIE AEWP28