Installation Instructions

30
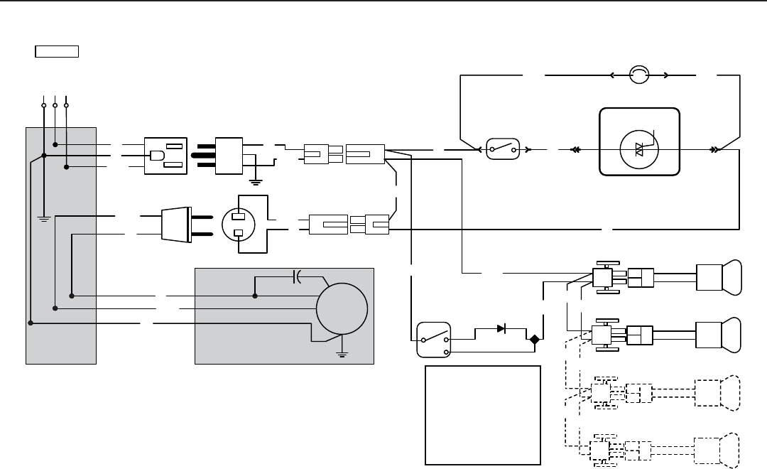
19. SCHÉMAS ÉLECTRIQUES (SUITE)
VENTILATEUR EXTÉRIEUR OU EN LIGNE
120 VCA
MISE À
LA
TERRE
LIGNE
NEUTRE
CODE
DES COULEURS
BLA BLANC
BLE BLEU
J JAUNE
N NOIR
V VERT
N
V
BLA
N
BLA
BLA
N
N
BLA
M
VENTILATEUR EXTERNE
PLAQUE DU
VENTILATEUR
BLA
N
N
BLA
N
BLE BLE
T
HERMOSTAT
HS
I
NTERRUPTEUR DU
VENTILATEUR
N
C
ONTRÔLE DE
VITESSE
INTERRUPTEUR
DE
L’ÉCLAIRAGE
J
BLA
J
LAMPE
BLA
J
BLA
J
HE0186F
LAMPELAMPELAMPE
N
BLA
V










