Installation Instructions

6
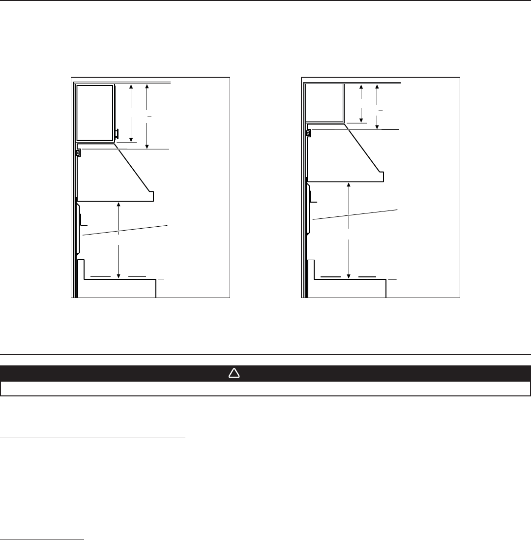
2. MEASURE INSTALLATION
Dimensions for the most common installation are shown below. Adjust your measurements for various heights of ceiling, soffits, decorative
flue, cabinets or cooktops.
The minimum hood distance above cooktop must not be less than 24’’. A maximum of 36” above cooktop is highly recommended
for best capture of cooking impurities.
Distances over 36” are at the installer and users discretion.
3. PREPARE THE INSTALLATION
NOTE: Before proceeding to the installation, check the contents of the box. If items are missing or damaged, contact the manufacturer.
Remove the installation kit from inside the hood.
Make sure that the following items are included:
- Wood strip (screwed on back of hood)
- Installation manual
- Accessories including:
• Hybrid baffle filters with handles (2 for 30” width, 3 for 36”, 42” and 48” width, 4 for 54” and 60” width)
• Shielded halogen bulbs (GU10 type base, 120 V, 50 W) (2 for hoods up to 36” width, 4 for hoods from 42” to 60” width)
• Bag of parts including:
4 no. 10-2” flat head screws, 8 no. 8 x 3/4” screws, 4 no. 10-32 nuts, 2 wall anchors, 2 washers 3/16” ID x 3/4” OD
Parts sold separately:
- Interior blower model iQ6, P3 or P6 (includes rough-in kit and 8” round adapter and damper)
- Interior blower model iQ12 or P12 (includes rough-in kit and 10” round vertical in-line damper, model 421)
- In-line blower assembly model ILB3, ILB6, ILB9 or ILB11 (all include transition(s) and rough-in plate)
- Exterior blower assembly model EB6, EB9, EB12 or EB15 (all include rough-in plate)
- Duct, elbows, dampers, wall and roof caps. Refer to pages 3 and 4 for a complete list of venting options and model numbers.
- Optional decorative flue AEWP28 Series
WARNING
!
When performing installation, servicing or cleaning the unit, it is recommended to wear safety glasses and gloves.
18”
24”
Cooktop
11
16
19 ”
Top of wood
mounting strip
Hood
RMP Series
Backsplash
(optional)
Standard
8 ft.
ceiling
Standard
36” H
cooktop
HH0021A
Standard
18” H
over cooktop
cabinet
INSTALLATION WITH STANDARD 18’’ HIGH
OVER COOKTOP CABINET
Standard
8 ft.
ceiling
12”
13 ”
Top of wood
mounting strip
36”
Standard
36” H
cooktop
Hood
Cooktop
11
16
RMP Series
Backsplash
(optional)
HH0216A
Standard
12” soffit
-or-
AEWP28 Series
decorative flue
INSTALLATION WITH STANDARD 12’’ SOFFIT OR
OPTIONAL DECORATIVE FLUE AEWP28 SERIES










