Installation Instructions

45
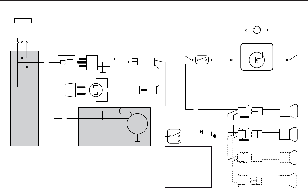
19. DIAGRAMAS ELÉCTRICOS
VENTILADOR INTERIOR
120 VCA
TIERRA
HILO
NEUTRO
LíNEA
N
V
B
N
B
B
N
N
B
M
VENTILADOR INTERIOR
PLACA DEL
VENTILADOR
B
N
N
B
N
AZ AZ
T
ERMOSTATO
HS
I
NTERRUPTOR DEL
VENTILADOR
N
C
ONTROL DE
VELOCIDAD
INTERRUPTOR
DE
LÁMPARA
AM
B
AM
LÁMPARA
B
AM
B
AM
HE0185E
LÁMPARALÁMPARALÁMPARA
CÓDIGOS
DE COLORES
AM AMARILLO
AZ AZUL
B BLANCO
N NEGRO
V VERDE










