Installation Instructions

22
AVERTISSEMENT
Il est recommandé de porter des lunettes et des gants de sécurité lors de l’installation, de l’entretien et de la
réparation de cet appareil.
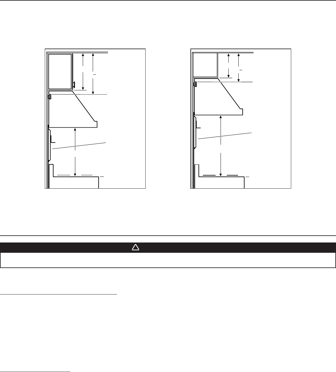
2. MESURER L’INSTALLATION
Les dimensions des installations les plus courantes sont indiquées ci-contre. Ajuster vos mesures selon les différentes hauteurs de plafond,
soffites, armoires, cheminée décorative ou surfaces de cuisson
La distance minimale entre le bas de votre hotte et la surface de cuisson ne doit pas être inférieure à 24 po. Un maximum de 36 po
au-dessus de la surface de cuisson est fortement recommandé pour une meilleure évacuation des odeurs de cuisson.
Une distance de plus de 36 po demeure à la discrétion de l’installateur et de l’utilisateur.
3. PRÉPARER L’INSTALLATION
NOTE : Avant de commencer l'installation, vérifier le contenu de la boîte. Si des pièces sont manquantes ou endommagées, contacter le manufacturier.
Retirer la trousse d’installation de l’intérieur de la hotte.
S’assurer que les articles suivants soient inclus :
- Lisière de bois (vissée au dos de la hotte)
- Manuel d’installation
- Les accessoires incluant :
• Les filtres à chicane hybrides (2 pour les hottes de 30 po de largeur, 3 pour celles de 36 po, 42 po et 48 po de largeur et 4 pour les
hottes 54 po et de 60 po de largeur)
• Ampoules halogènes avec écran (120 V, 50 W, avec culot GU10) (2 pour les hottes allant jusqu’à 36 po de largeur, 4 pour les
hottes allant de 42 po à 60 po de largeur)
• Le sachet de pièces incluant :
4 vis à tête plate n° 10-2 po, 8 vis n° 8 x 3/4 po, 4 écrous n° 10-32, 2 douilles à expansion, 2 rondelles 3/16 po DI x 3/4 po DE
Pièces vendues séparément :
- Ventilateur intérieur modèle iQ6, P3 ou P6 (incluant la plaque ventilateur et l’adaptateur/volet de 8 po rond)
- Ventilateur intérieur modèle iQ12 ou P12 (incluant la plaque ventilateur et le volet intérieur de 10 po rond vertical, modèle 421)
- Ensemble de ventilateur en ligne modèle ILB3, ILB6, ILB9 ou ILB11 (tous incluant la (les) transition(s) et la plaque ventilateur)
- Ensemble de ventilateur extérieur, modèle EB6, EB9, EB12 ou EB15 (tous incluant la plaque ventilateur)
- Conduits, coudes, volets, capuchons de mur ou de toit. Consulter les pages 19 et 20 pour la liste complète des accessoires de ventilation
et les numéros de modèle.
- Cheminée décorative optionnelle série AEWP28
18 po
24 po
Surface de cuisson
11
16
19 po
Dessus de la
lisière de bois
Hotte
Dosseret
série RMP
(optionnel)
Plafond
standard
de 8 pi
Surface de cuisson
standard de 36 po
de hauteur
HH0021F
Armoire
standard de
18 po de
hauteur
INSTALLATION SOUS UNE ARMOIRE STANDARD
DE 18 PO DE HAUTEUR
Plafond
standard
de 8 pi
12 po
13 po
Dessus de la
lisière de bois
36 po
Hotte
11
16
Dosseret
série RMP
(optionnel)
HH0216F
Surface de cuisson
Surface de cuisson
standard de 36 po
de hauteur
Soffite standard
de 12 po
ou cheminée
décorative de
série AEWP28
INSTALLATION AVEC AVEC UN SOFFITE DE STANDARD DE 12 PO OU
UNE CHEMINÉE DÉCORATIVE OPTIONNELLE DE SÉRIE AEWP28
!










