by Broan Range Hood Specification Sheet

SPECIFICATION SHEET
BEST BY BROAN P.O. BOX 140 HARTFORD, WISCONSIN 53027
REFERENCE QTY. REMARKS Project
Location
Architect
Engineer
Contractor
Submitted by Date
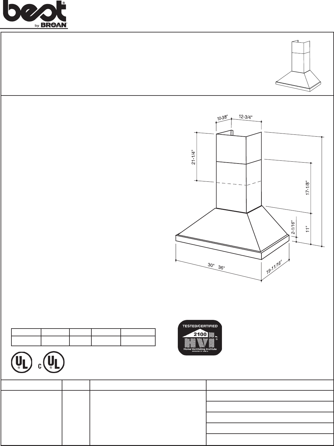
K41 SERIES
RANGE HOODS
Class pyramidal lines create a statement of simple
elegance.
FEATURES
•
Italian design
•
Wall mount
•
Finishes: 304 Stainless Steel #4 Brushed, White, Black,
Polished Brass, Brushed Copper
•
Widths: 30”, 36”
•
Telescopic flue accommodates 8’ to 9’ ceilings
•
6” round duct connector/backdraft damper
•
Convertible to non-ducted operation (for 8’ to 9’ ceilings
only - requires Model No. REKITK41 sold separately)
•
Halogen lighting (2 x 20 watt, MR16 - bulbs included)
•
Slide controls: on-off, infinite speed
•
Single centrifugal blower
•
Dishwasher-safe filter features a quick-release latch and
decorative cover plate
•
Heat Sentry
TM
- automatically turns blower to high speed
when excess cooking heat is detected
OPTIONS
•
Backsplash available (Model BSK1)
•
Accent trim in contrasting or complementary finishes
(Model No. FTK41)
•
Flue extension for 10’ ceiling (ducted only) (Model No.
FEXTK42) (31-7/8” long)
•
Recirculating filter (Model No. ROUND FILTER)
•
Replacement grease filters available
•
Replacement bulb (Part No. SB02300668)
HVI-2100 CERTIFIED RATINGS comply with new
testing technologies and procedures prescribed by
the Home Ventilating Institute, for off-the-shelf
products, as they are available to consumers. Product
performance is rated at 0.1 in. static pressure, based
on tests conducted in AMCA’s state-of-the-art test
laboratory. Sones are a measure of humanly-perceived
loudness, based on laboratory measurements.
50J 99042839C
SPECIFICATIONS
VOLTS AMPS CFM SONES DUCT
120 3.13 500 8.0 6” round
min 33"
max 47"
Mount range hood so bottom of hood is
24” minimum above cooking surface.


