Specification Sheet

Page 7
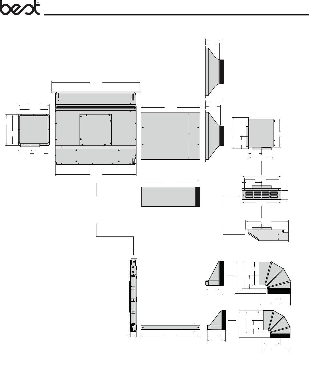
SYSTEM DIMENSIONS
36.000
24.000
7.500
7.500
5.272
12.750
5.000
15.952
7.976
10.310
33.152
14.048
17.478
6.478
11.000
5.750
6.000
12.750
12.750
11.560
11.586
4.240
7.320
11.586
16.000
27.152
45.152
30.000
48.000
PF6
FLEX BLOWER
ANKD NON-DUCT
RECIRCULATION KIT
AEDD2 1-7/8” X 19”
RECTANGULAR DUCT
D49M30SB
D49M36SB
D49M48SB
DOWNDRAFT
AVDKD8
1-7/8” X 19”
TO 8” RD.
TRANSITION
AVDKD10
1-7/8” X 19”
TO 10” RD.
TRANSITION
AVDKD10
1-7/8” X 19”
TO 10” RD.
TRANSITION
AVDKD8
1-7/8” X 19”
TO 8” RD.
TRANSITION
432
8” RD.
ELBOW
418
10” RD.
ELBOW
REAR
DUCTING
SIDE
DUCTING
FRONT
SIDE
PF6
FLEX BLOWER
408 (8”) OR 410 (10”)
ROUND DUCT
24.000
AEDD2 1-7/8” X 19”
RECTANGULAR DUCT
19.000
FRONT
FRONT REAR
3.750
INLET
OUTLET
OUTLET
FRONT
SIDE
HJ0124A
7.000
11.000
10.984
9.517
5.528
8.000
2.410
24.000
7.500
6.000
7.500
5.750
8.250
13.000
13.813
12.063
8.250
10.000
1.875










