Spec Sheet

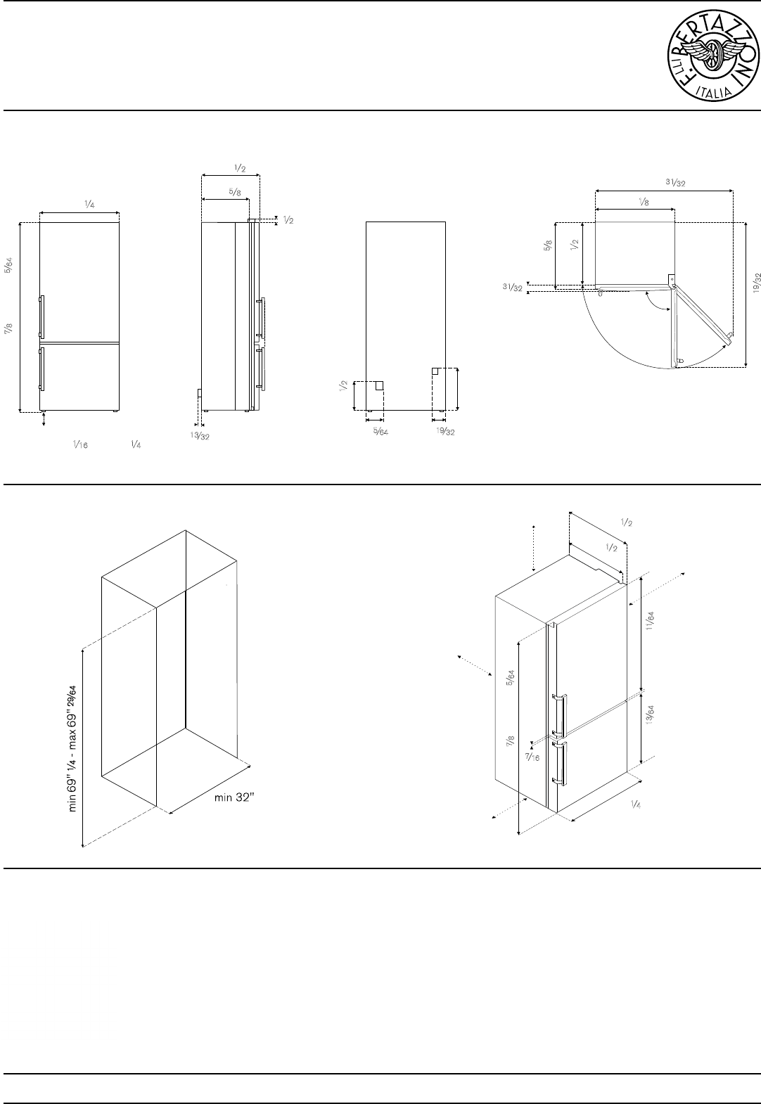
FRONT SIDE TOP
REF31BMFIX
REFRIGERATOR 31’’ FREESTANDING BOTTOM MOUNT WITH ICE MAKER
STAINLESS STEEL
BACK
REF31BMFIX
min 68"
7
⁄8 - max 69"
5
⁄64
26"
1
⁄2
23"
5
⁄8
HINGES
DIMENSIONS
WATER/ELECTRICAL
CONNECTION
13
⁄32
SIDE
1
⁄2
31"
1
⁄4
FRIDGE DIMENSIONS
FEET REGULATION
min 1"
1
⁄16 - max 1"
1
⁄4
FRONT
130°
23"
5
⁄8
55"
19
⁄32
min 130°
44"
31
⁄32
31"
1
⁄8
2"
31
⁄32
26"
1
⁄2
26"
1
⁄2
25"
1
⁄2
min 68"
7
⁄8 - max 69"
5
⁄64
31"
1
⁄4
DOOR DIMENSIONS
7
⁄16
40"
11
⁄64 27"
13
⁄64
Clearance
3
⁄8"
or more on
both sides
Clearance
2"
or more on back
Clearance
3
⁄8"
or more on
both sides
Clearance
3
⁄8"
or more on top
from the front lip
of the door
20"
1
⁄2
ELECTRICAL
CONNECTION
WATER
CONNECTION
30"
12"
5
⁄64 11"
19
⁄32
BACK
REF31BMFIX
min 68"
7
⁄8 - max 69"
5
⁄64
26"
1
⁄2
23"
5
⁄8
HINGES
DIMENSIONS
WATER/ELECTRICAL
CONNECTION
13
⁄32
SIDE
1
⁄2
31"
1
⁄4
FRIDGE DIMENSIONS
FEET REGULATION
min 1"
1
⁄16 - max 1"
1
⁄4
FRONT
130°
23"
5
⁄8
55"
19
⁄32
min 130°
44"
31
⁄32
31"
1
⁄8
2"
31
⁄32
26"
1
⁄2
26"
1
⁄2
25"
1
⁄2
min 68"
7
⁄8 - max 69"
5
⁄64
31"
1
⁄4
DOOR DIMENSIONS
7
⁄16
40"
11
⁄64 27"
13
⁄64
Clearance
3
⁄8"
or more on
both sides
Clearance
2"
or more on back
Clearance
3
⁄8"
or more on
both sides
Clearance
3
⁄8"
or more on top
from the front lip
of the door
20"
1
⁄2
ELECTRICAL
CONNECTION
WATER
CONNECTION
30"
12"
5
⁄64 11"
19
⁄32
www.bertazzoni.com
Disclaimer: while every effort has been made to insure the accuracy of the information contained in this document, Fratelli Bertazzoni reserves the right to change any part of the information at any
time without notice. For detailed installation specifications consult the installation manual. Fratelli Bertazzoni, Bertazzoni and the winged wheel brand icon are registered trademarks of Bertazzoni Spa.
BACK
REF31BMFIX
min 68"
7
⁄8 - max 69"
5
⁄64
26"
1
⁄2
23"
5
⁄8
HINGES
DIMENSIONS
WATER/ELECTRICAL
CONNECTION
13
⁄32
SIDE
1
⁄2
31"
1
⁄4
FRIDGE DIMENSIONS
FEET REGULATION
min 1"
1
⁄16 - max 1"
1
⁄4
FRONT
130°
23"
5
⁄8
55"
19
⁄32
min 130°
44"
31
⁄32
31"
1
⁄8
2"
31
⁄32
26"
1
⁄2
26"
1
⁄2
25"
1
⁄2
min 68"
7
⁄8 - max 69"
5
⁄64
31"
1
⁄4
DOOR DIMENSIONS
7
⁄16
40"
11
⁄64 27"
13
⁄64
Clearance
3
⁄8"
or more on
both sides
Clearance
2"
or more on back
Clearance
3
⁄8"
or more on
both sides
Clearance
3
⁄8"
or more on top
from the front lip
of the door
20"
1
⁄2
ELECTRICAL
CONNECTION
WATER
CONNECTION
30"
12"
5
⁄64 11"
19
⁄32
BACK
REF31BMFIX
min 68"
7
⁄8 - max 69"
5
⁄64
26"
1
⁄2
23"
5
⁄8
HINGES
DIMENSIONS
WATER/ELECTRICAL
CONNECTION
13
⁄32
SIDE
1
⁄2
31"
1
⁄4
FRIDGE DIMENSIONS
FEET REGULATION
min 1"
1
⁄16 - max 1"
1
⁄4
FRONT
130°
23"
5
⁄8
55"
19
⁄32
min 130°
44"
31
⁄32
31"
1
⁄8
2"
31
⁄32
26"
1
⁄2
26"
1
⁄2
25"
1
⁄2
min 68"
7
⁄8 - max 69"
5
⁄64
31"
1
⁄4
DOOR DIMENSIONS
7
⁄16
40"
11
⁄64 27"
13
⁄64
Clearance
3
⁄8"
or more on
both sides
Clearance
2"
or more on back
Clearance
3
⁄8"
or more on
both sides
Clearance
3
⁄8"
or more on top
from the front lip
of the door
20"
1
⁄2
ELECTRICAL
CONNECTION
WATER
CONNECTION
30"
12"
5
⁄64 11"
19
⁄32
BACK


