Spec Sheet

REF30FCIPIXR
30" BUILT-IN FREEZER COLUMN
STAINLESS STEEL RIGHT SWING DOOR
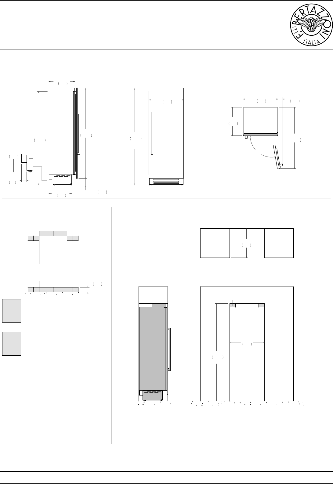
PRODUCT DIMENSIONS
(a) Area to be left clear for the anti-tipping brackets
–
3”1/2x5” (82x127mm)
SIDE VIEW
SIDE VIEW FRONT VIEW
TOP VIEW
FRONT VIEW TOP VIEW
CUTOUT DIMENSIONS
INSTALLATION
REQUIREMENTS
ELECTRICAL & WATER
CONNECTION
Connection(s) placement within the
opening may require additional
cabinet depth.
TOP VIEW
A
properly-grounded,
horizontally-mounted electrical
receptacle should be installed
according to this drawing.
E
W
EWEW
WE
FRONT VIEW
EWEW WE
5"
127
* Maximum Overall Handle Dimension
If the appliance(s) is not connected
through the side profile trims to
secured cabinetry anti-tip brackets
must be installed.
To connect to the water supply
system, a 3/4” NPT waterline
with accessible shut-off valve
must be supplied.
29 15/16"
761
83 1/2"
2120
+
1"(25)
22 1/4"
565
19 7/8"
505
30"
762
83 7/8"
2130
Min.
25"
635
a
a
80 3/4"
2050
+
1"(25)
5"
127
2 3/4"
70
5 3/4"
146
+ 1"(25)
77 3/4"
1974
29 5/8"
752
DOOR
WIDTH
24 3/8"
620
100°
52 5/8"
1336
4"
103
*
For installation of multiple products in combination, refer to the Built-in Food Preservation Design Guide at us.bertazzoni.com or ca.bertazzoni.com
Disclaimer: while every effort has been made to ensure the accuracy of the information contained in this document, Fratelli Bertazzoni reserves the right to change it at any time without notice.
For detailed installation instructions, consult the installation manual. Fratelli Bertazzoni, Bertazzoni and the winged wheel brand icon are registered trademarks of Bertazzoni Spa.
bertazzoni.comversion: 2


