Design Guide

99bertazzoni.com
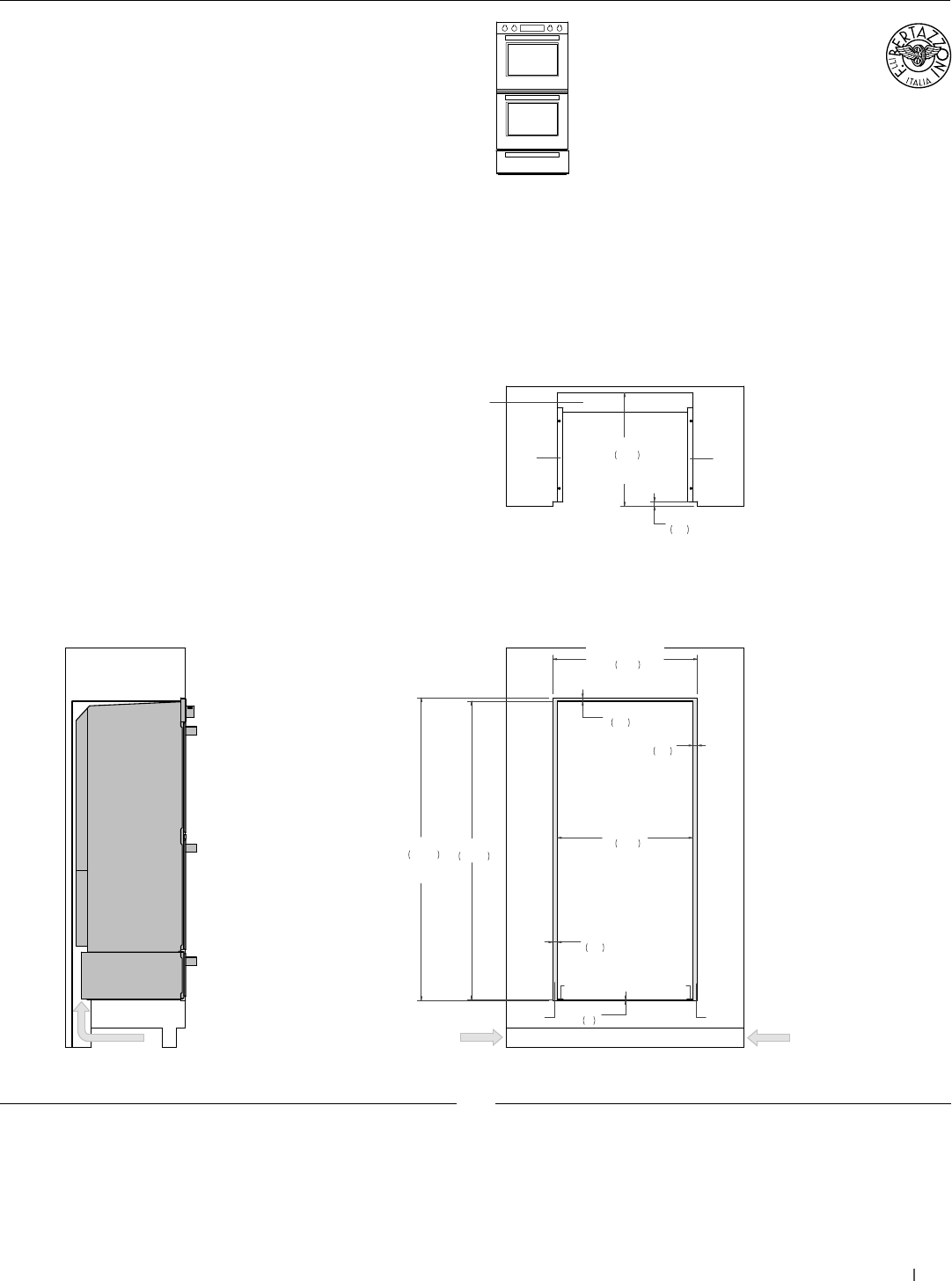
30” Convection Double Oven +
30” Warming Drawer
Flush installation
SIDE VIEW
FRONT VIEW
TOP VIEW
(a) Spacers Included with appliance
(b) Visible Area Match finish to outside cabinet panels
AIR INTAKE
28 1/2"
724
30 1/2"
774
FLUSH INSET
WIDTH
63 3/4"
1618
FLUSH INSET
HEIGHT
62 7/8"
1597
1"
25
1"
25
1/8"
3
23 7/8"
606
FLUSH INSET
DEPTH
a
bb
a
a
a
3/4"
18
AIR INTAKE
4" x 15"
(102 x 380)
AIR INTAKE
4" x 15"
(102 x 380)
4" x 28 1/2"
(102 x 724)
AIR INTAKE
1"
25
(a) Spacers - Included with appliance
(b) Visible Area - Match finish to outside cabinet panels
MULTIPLE INSTALLATIONS - 30” OVENS WALL CONFIGURATIONS
PROF30FDEXT
PROF30FDEXV
MAST30FDEXT
MAST30FDEXV
PROF30WDEX
MAST30WDEX
For electrical and gas supply please see single installation
requirements. Placement within the opening may require
additional cabinet depth.