Design Guide

90 bertazzoni.com
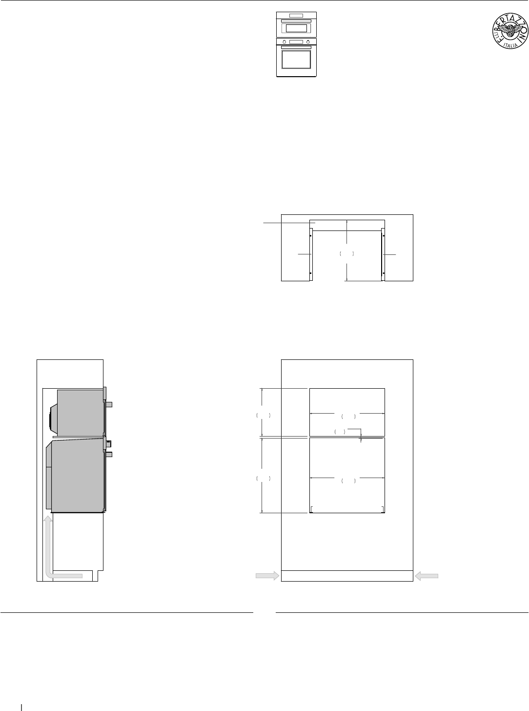
30” Specialty Oven +
30” Convection Single Oven
Proud installation
SIDE VIEW
FRONT VIEW
TOP VIEW
(a) Spacers – Included with appliance
AIR INTAKE
28 1/2"
724
28 1/2"
724
18 1/4"
464
28 3/8"
720
5/8"
16
23"
585
DEPTH
a
a
a a
4" x 28 1/2"
(102 x 724)
AIR INTAKE
AIR INTAKE
4" x 15"
(102 x 380)
AIR INTAKE
4" x 15"
(102 x 380)
(a) Spacers - Included with appliance
MULTIPLE INSTALLATIONS - 30” OVENS WALL CONFIGURATIONS
PROF30SOEX
PROF30CSEX
MAST30SOEX
MAST30CSEX
PROF30FSEXT
PROF30FSEXV
MAST30FSEXT
MAST30FSEXV
For electrical and gas supply please see single installation
requirements. Placement within the opening may require
additional cabinet depth.