Design Guide

89bertazzoni.com
30” Specialty Oven +
30” Convection Single Oven +
30” Warming Drawer
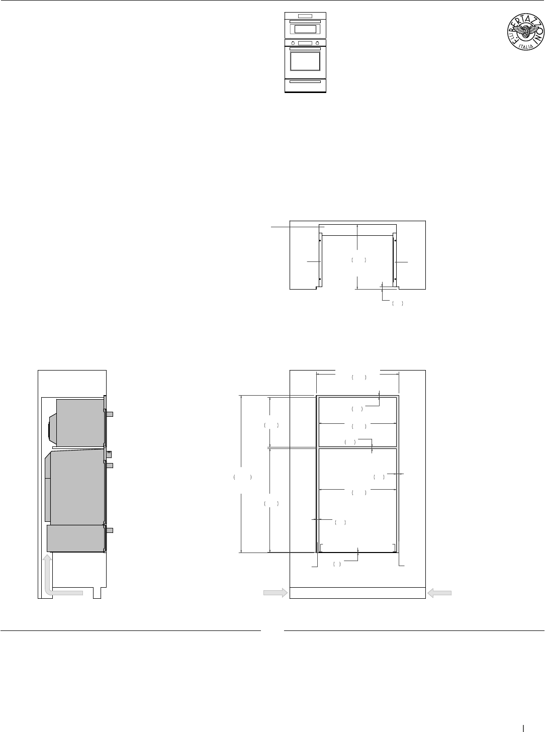
Flush installation
SIDE VIEW
FRONT VIEW
TOP VIEW
(a) Spacers – Included with appliance
(b) Visible Area – Match finish to outside cabinet panels
AIR INTAKE
28 1/2"
724
28 1/2"
724
30 1/2"
774
FLUSH INSET
WIDTH
57 7/8"
1471
FLUSH INSET
HEIGHT
18 1/4"
464
38 1/4"
971
5/8"
16
1"
25
1"
25
3/4"
18
1/8"
3
23 7/8"
606
FLUSH INSET
DEPTH
a
b
b
(1)
(1)
a
4" x 28 1/2"
(102 x 724)
AIR INTAKE
AIR INTAKE
4" x 15"
(102 x 380)
AIR INTAKE
4" x 15"
(102 x 380)
1"
25
(a) Spacers - Included with appliance
(b) Visible Area - Match finish to outside cabinet panels
MULTIPLE INSTALLATIONS - 30” OVENS WALL CONFIGURATIONS
PROF30SOEX
PROF30CSEX
MAST30SOEX
MAST30CSEX
PROF30FSEXT
PROF30FSEXV
MAST30FSEXT
MAST30FSEXV
PROF30WDEX
MAST30WDEX
For electrical and gas supply please see single installation
requirements. Placement within the opening may require
additional cabinet depth.