Design Guide

85bertazzoni.com
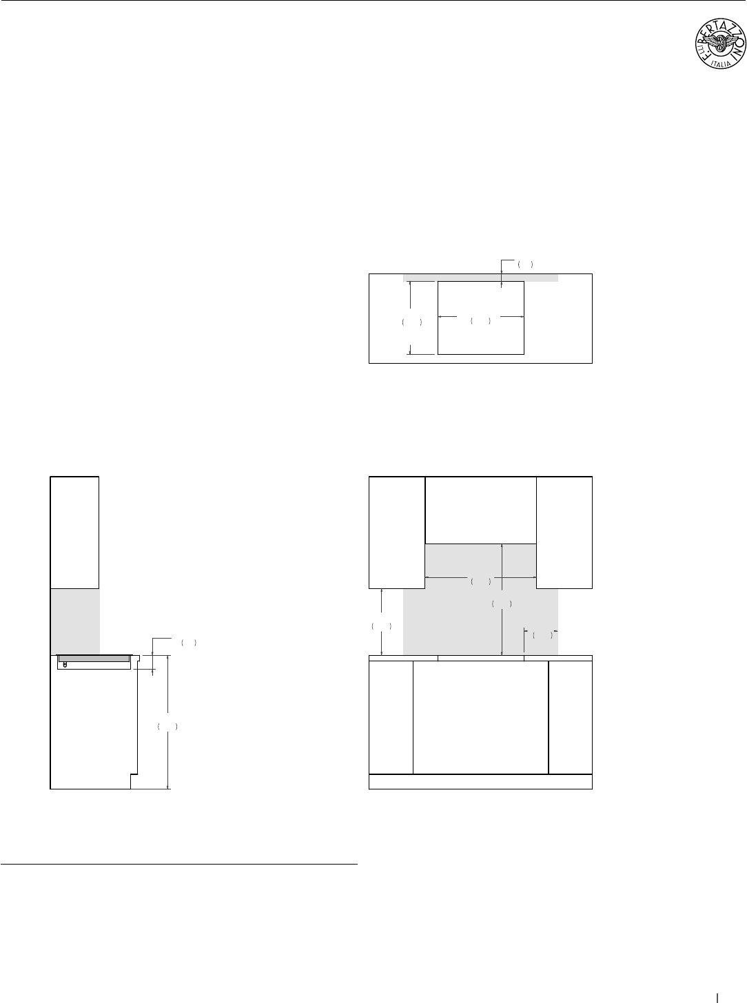
24” Electric Ceramic Cooktop
Installation
INDUCTION & ELECTRIC COOKTOPS
SIDE VIEW
FRONT VIEW
TOP VIEW
Combustible material cannot be installed within shaded area.
23 1/4"
590
CUT-OUT
WIDTH
19 5/8"
500
CUT-OUT
DEPTH
18"
457
30"
763
2"
50
36"
914
13"
330
30"
762
8 7/8"
227
3 3/4"
95
Combustible material cannot be installed within shaded area.