Design Guide

76 bertazzoni.com
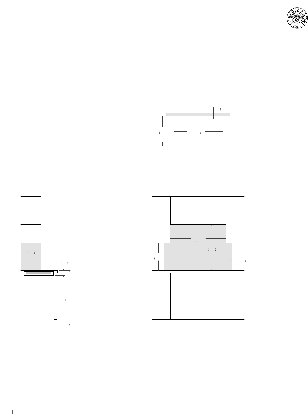
36” Induction Cooktop
Installation
Combustible material cannot be installed within shaded area.
INDUCTION & ELECTRIC COOKTOPS
SIDE VIEW
FRONT VIEW
TOP VIEW
Combustible material cannot be installed within shaded area.
31 7/8"
810
CUT-OUT
WIDTH
19 1/4"
490
CUT-OUT
DEPTH
18"
457
30"
763
2"
51
36"
914
13"
330
36 3/8"
925
6"
152
3 1/8"
80