Design Guide

148 bertazzoni.com
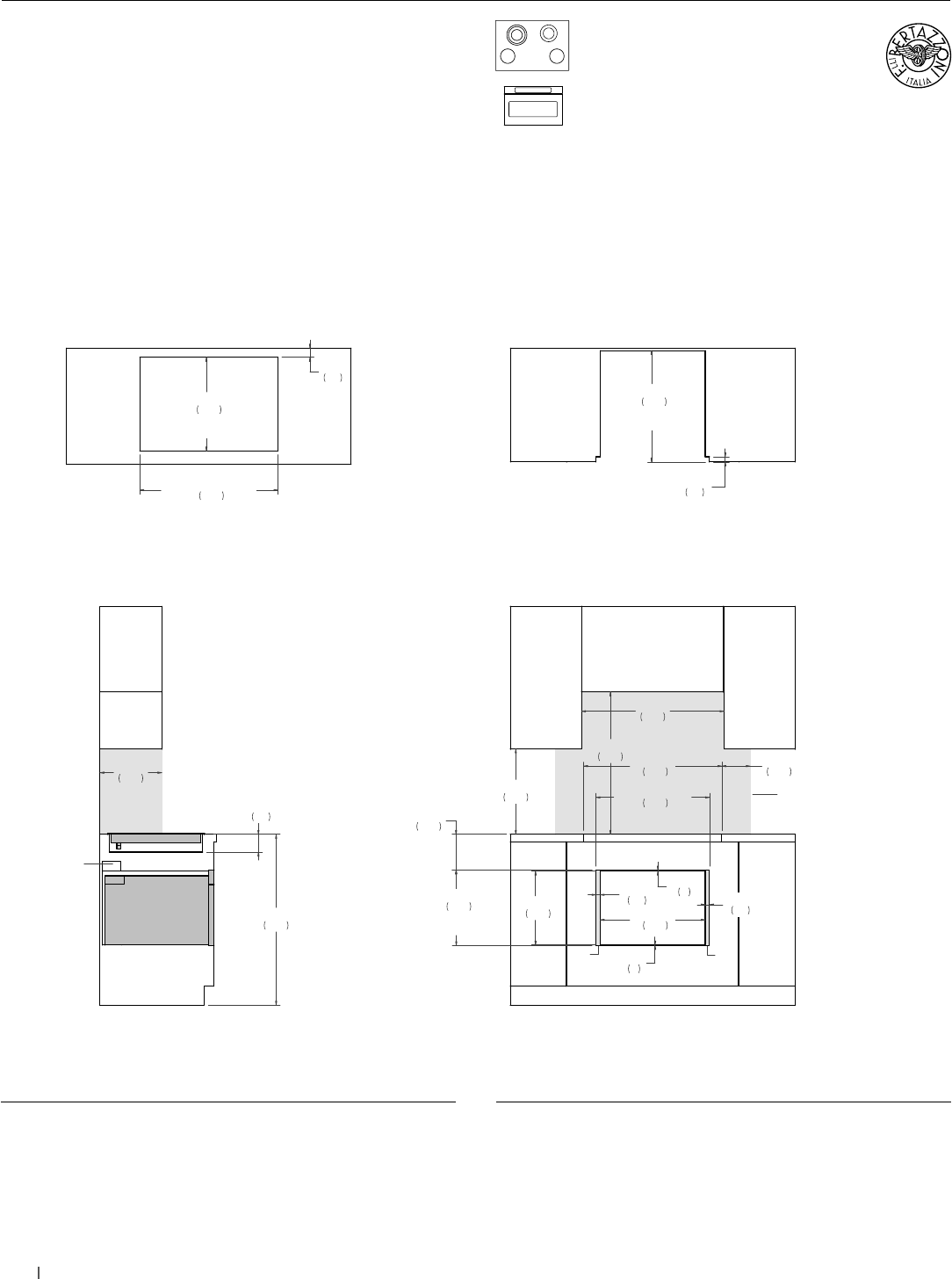
24” Microwave Drawer +
30” Electric Ceramic Cooktop
Flush installation
SIDE VIEW
FRONT VIEW
(a) Visible Area Match finish to outside cabinet panels
(b) Combustible material cannot be installed within shaded area
TOP VIEW – OVEN DETAIL TOP VIEW – COOKTOP DETAIL
a
a
18"
457
30"
763
30"
762
6"
152
36"
914
13"
330
15 1/2"
395
23 7/8"
608
FLUSH INSET
WIDTH
15 7/8"
404
FLUSH INSET
HEIGHT
7/8"
23
7/8"
23
1/8"
3
1/4"
6
22 1/8"
562
23 1/2"
597
FLUSH INSET
DEPTH
b
7 1/2"
191
29 1/8"
740
3 3/4"
95
ANTI TIP
1 1/8"
28
19 5/8"
500
COOKTOP
CUT-OUT DEPTH
29 1/8"
740
COOKTOP
CUT-OUT WIDTH
2"
50
(a) Visible Area - Match finish to outside cabinet panels
(b) Combustible material cannot be installed within shaded area
MULTIPLE INSTALLATIONS - 24” OVEN AND COOKTOP UNDERCOUNTER CONFIGURATIONS
PE304CER
For electrical and gas supply please see single installation
requirements. Placement within the opening may require
additional cabinet depth.
MD24X