Design Guide

91bertazzoni.com
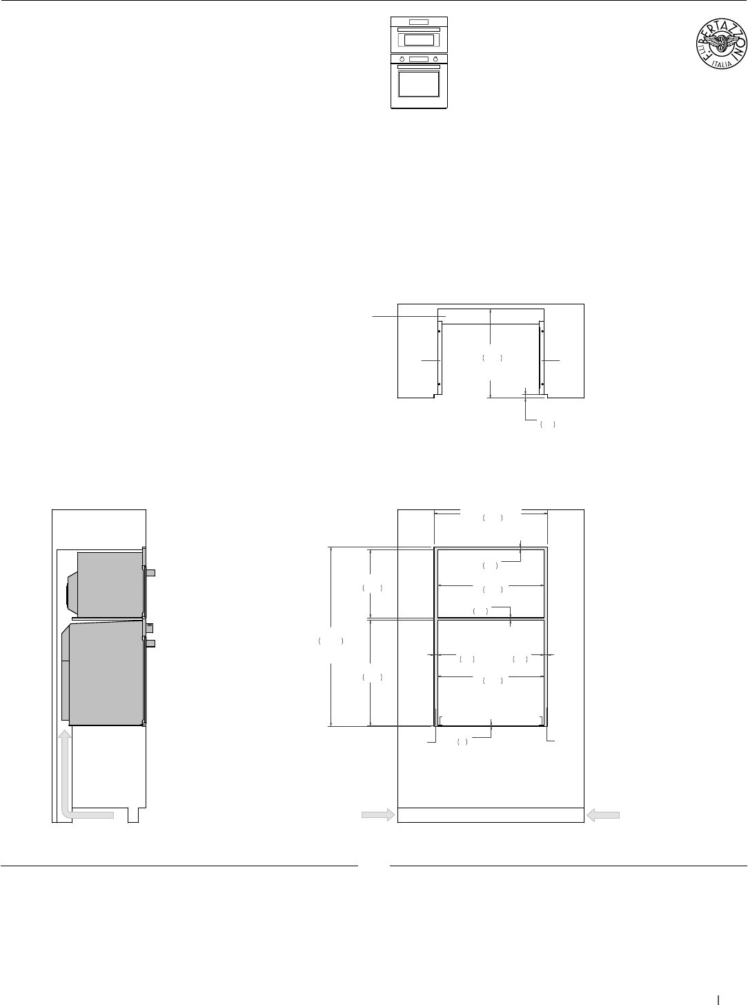
30” Specialty Oven +
30” Convection Single Oven
Flush installation
SIDE VIEW
FRONT VIEW
TOP VIEW
(a) Spacers Included with appliance
(b) Visible Area Match finish to outside cabinet panels
AIR INTAKE
28 1/2"
724
28 1/2"
724
30 1/2"
774
FLUSH INSET
WIDTH
48"
1220
FLUSH INSET
HEIGHT
18 1/4"
464
28 3/8"
720
5/8"
16
1"
25
1"
25
3/4"
18
1/8"
3
23 7/8"
606
FLUSH INSET
DEPTH
a
b
b
a
a a
AIR INTAKE
4" x 15"
(102 x 380)
AIR INTAKE
4" x 15"
(102 x 380)
4" x 28 1/2"
(102 x 724)
AIR INTAKE
1"
25
(a) Spacers - Included with appliance
(b) Visible Area - Match finish to outside cabinet panels
MULTIPLE INSTALLATIONS - 30” OVENS WALL CONFIGURATIONS
PROF30SOEX
PROF30CSEX
MAST30SOEX
MAST30CSEX
PROF30FSEXT
PROF30FSEXV
MAST30FSEXT
MAST30FSEXV
For electrical and gas supply please see single installation
requirements. Placement within the opening may require
additional cabinet depth.