Design Guide

9bertazzoni.com
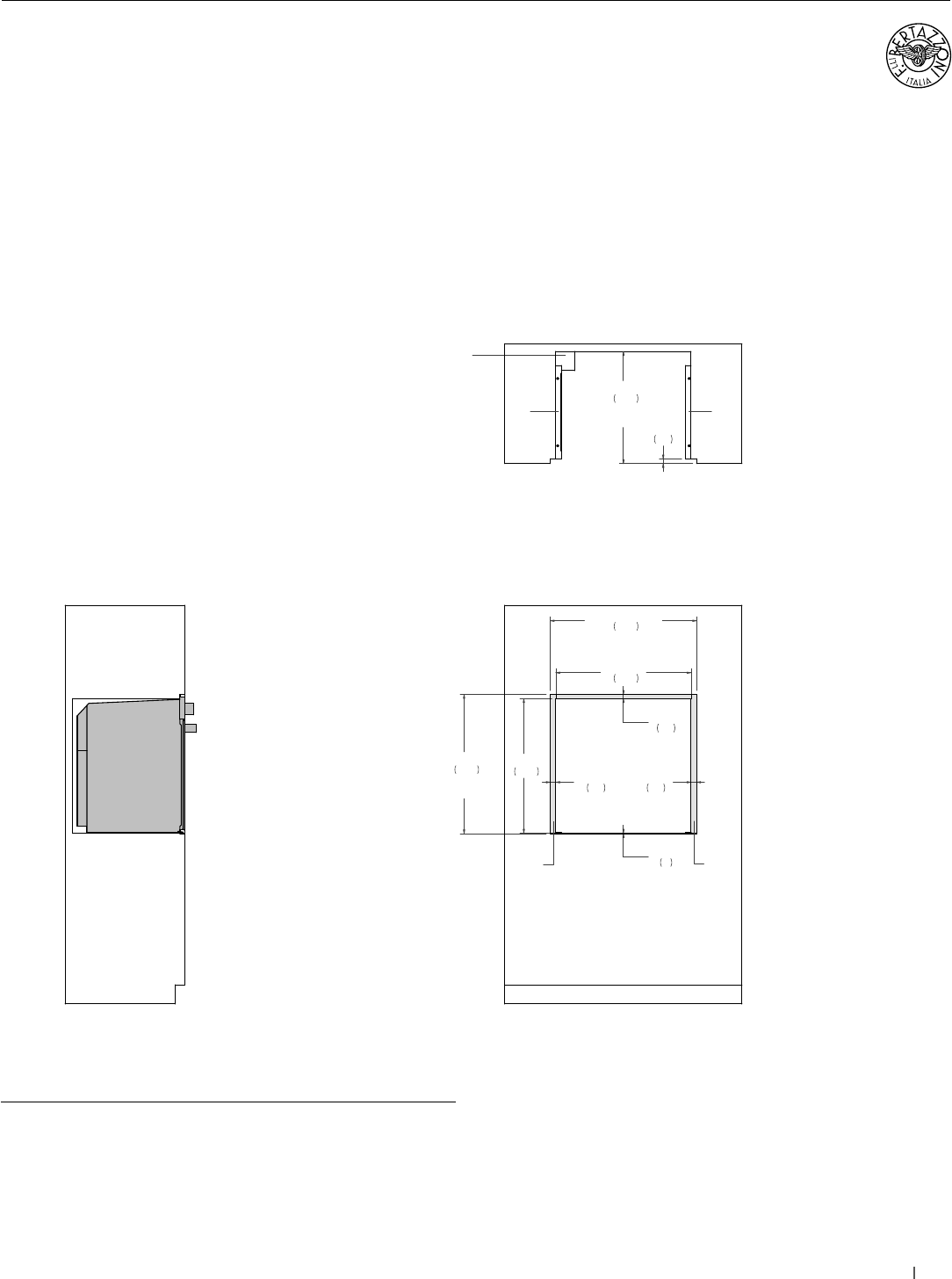
30” Electric Convection Single Ovens
Flush installation non vented
WALL OVENS
SIDE VIEW
FRONT VIEW
TOP VIEW
(a) Spacers Included with appliance
(b) Visible Area Match finish to outside cabinet panels
4" x 4"
(102 x 102)
CUT OUT SLOT
FOR POWER CORD
28 1/2"
724
30 7/8"
784
FLUSH INSET
WIDTH
28 3/8"
720
29 3/8"
746
FLUSH INSET
HEIGHT
1 1/8"
30
1 1/8"
30
1/8"
3
7/8"
23
b
b
23 5/8"
600
FLUSH INSET
DEPTH
1"
25
a a
(a) Spacers - Included with appliance
(b) Visible Area - Match finish to outside cabinet panels