Design Guide

10 bertazzoni.com
30” Electric Convection Single Ovens
Flush installation vented
WALL OVENS
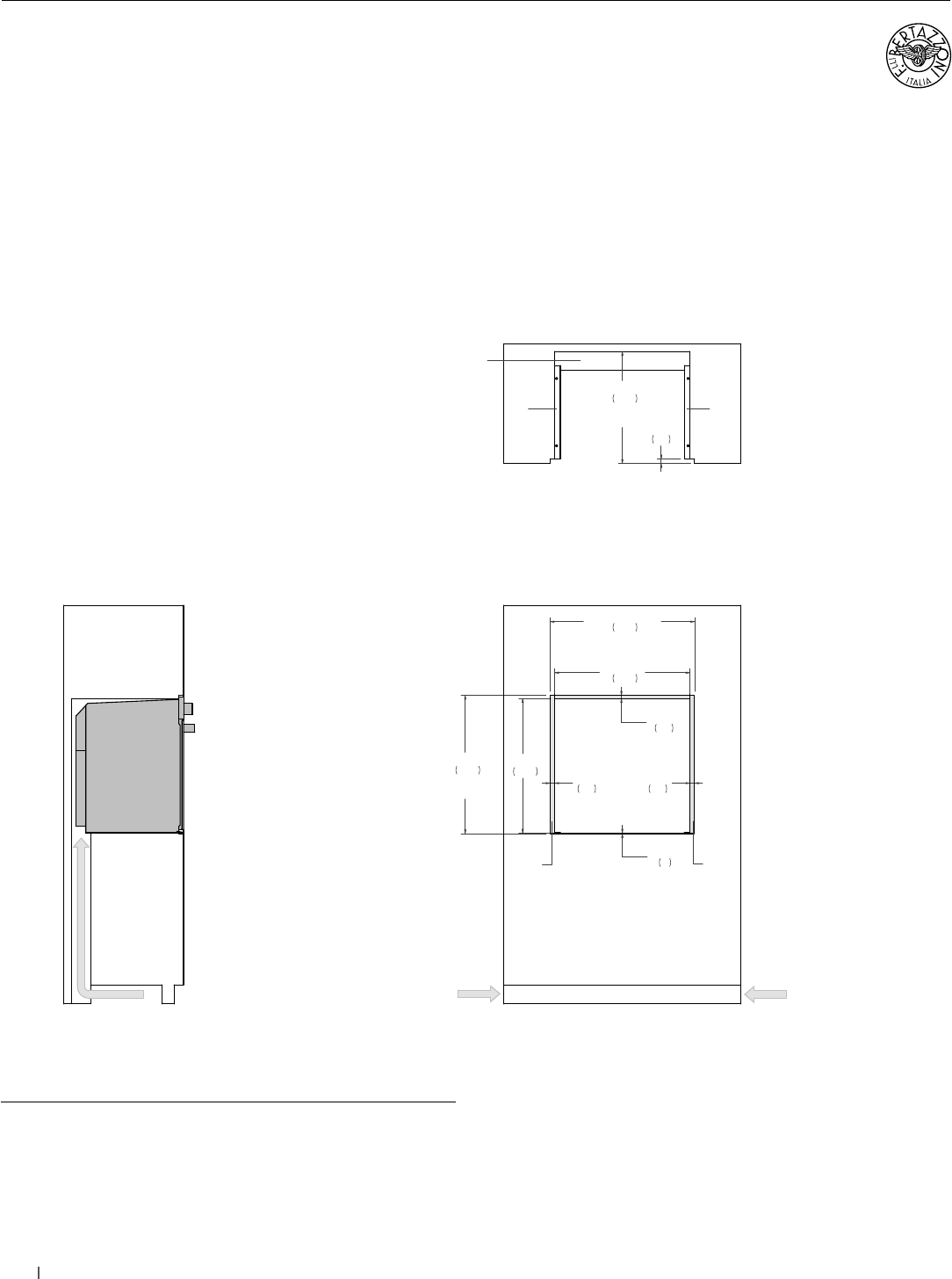
SIDE VIEW
FRONT VIEW
TOP VIEW
(a) Spacers Included with appliance
(b) Visible Area Match finish to outside cabinet panels
AIR INTAKE
28 1/2"
724
30 1/2"
774
FLUSH INSET
WIDTH
28 3/8"
720
29 1/8"
741
FLUSH INSET
HEIGHT
1"
25
1"
25
1/8"
3
3/4"
18
23 5/8"
600
FLUSH INSET
DEPTH
1"
25
b
b
a a
AIR INTAKE
4" x 15"
(102 x 380)
AIR INTAKE
4" x 15"
(102 x 380)
4" x 28 1/2"
(102 x 724)
AIR INTAKE
(a) Spacers - Included with appliance
(b) Visible Area - Match finish to outside cabinet panels