Design Guide

91bertazzoni.com
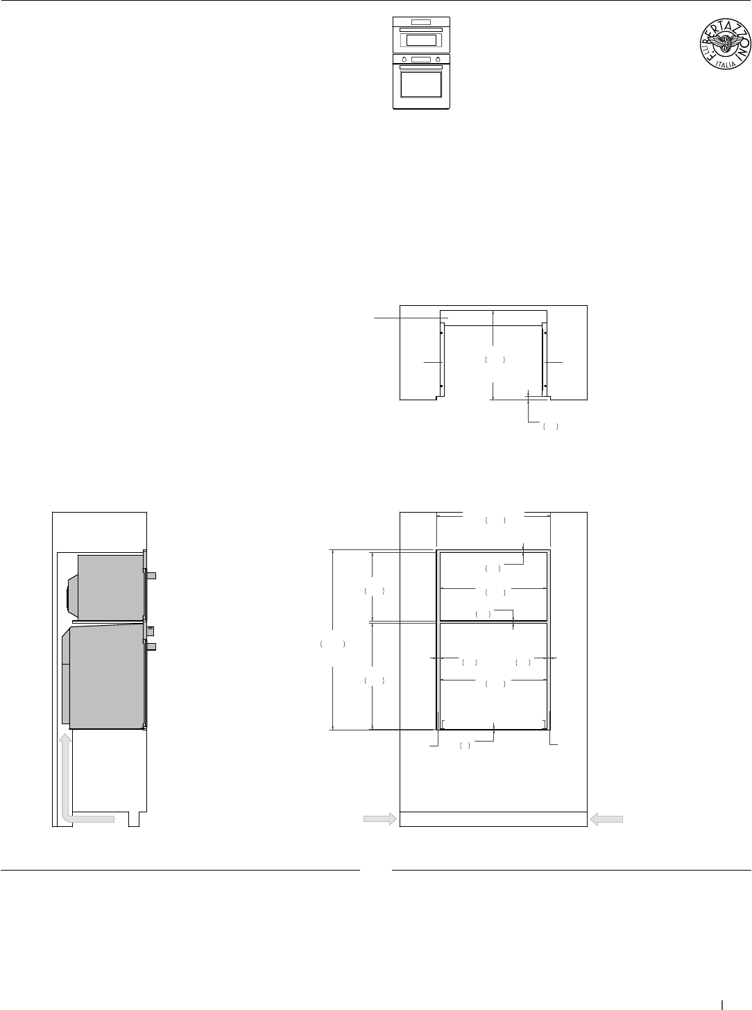
30” Specialty Oven + 
30” Convection Single Oven
Flush installation
SIDE VIEW 
FRONT VIEW
TOP VIEW
(a)  Spacers – Included with appliance 
(b)  Visible Area – Match finish to outside cabinet panels 
AIR INTAKE
28 1/2"
724
28 1/2"
724
30 1/2"
774
FLUSH INSET
WIDTH
48"
1220
FLUSH INSET
HEIGHT
18 1/4"
464
28 3/8"
720
5/8"
16
1"
25
1"
25
3/4"
18
1/8"
3
23 7/8"
606
FLUSH INSET
DEPTH
a
b
b
a
a a
AIR INTAKE
4" x 15"
(102 x 380)
AIR INTAKE
4" x 15"
(102 x 380)
4" x 28 1/2"
(102 x 724)
AIR INTAKE
1"
25
(a)  Spacers - Included with appliance
(b)  Visible Area - Match finish to outside cabinet panels
MULTIPLE INSTALLATIONS - 30” OVENS WALL CONFIGURATIONS
PROF30SOEX 
PROF30CSEX 
MAST30SOEX 
MAST30CSEX
PROF30FSEXT 
PROF30FSEXV 
MAST30FSEXT 
MAST30FSEXV
For electrical and gas supply please see single installation 
requirements. Placement within the opening may require 
additional cabinet depth.










