Design Guide

141bertazzoni.com
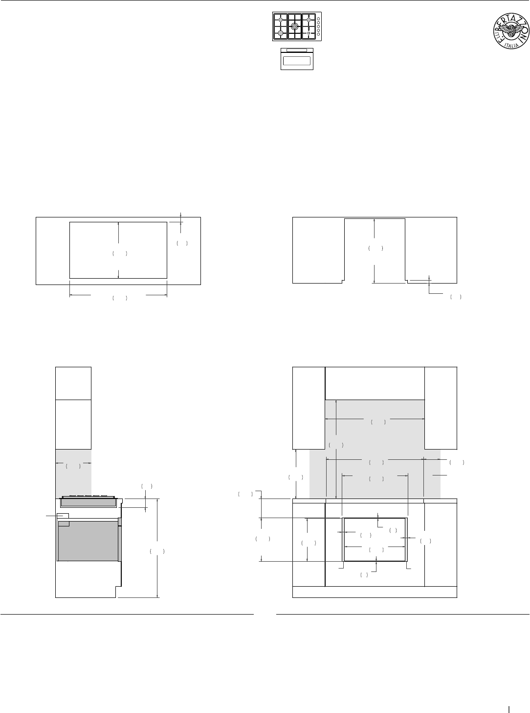
24” Microwave Drawer +
36” Drop-in Cooktop
Flush installation
SIDE VIEW 
FRONT VIEW
(a)  Visible Area – Match finish to outside cabinet panels 
(b)  Combustible material cannot be installed within shaded area 
TOP VIEW – OVEN DETAIL TOP VIEW – COOKTOP DETAIL 
a
a
18"
457
36"
915
36 3/8"
925
6"
152
3 1/8"
80
36"
914
13"
330
15 1/2"
395
23 7/8"
608
FLUSH INSET
WIDTH
15 7/8"
404
FLUSH INSET
HEIGHT
7/8"
23
7/8"
23
1/8"
3
1/4"
6
22 1/8"
562
23 1/2"
597
FLUSH INSET
DEPTH
b
6 7/8"
176
35 5/8"
905
1 1/8"
28
35 5/8"
905
COOKTOP
CUT-OUT WIDTH
20 1/2"
520
COOKTOP 
CUT-OUT DEPTH
1 3/4"
45
ANTI TIP
(a)  Visible Area - Match finish to outside cabinet panels
(b)  Combustible material cannot be installed within shaded area
MULTIPLE INSTALLATIONS - 24” OVEN AND COOKTOP UNDERCOUNTER CONFIGURATIONS
MD24X
For electrical and gas supply please see single installation 
requirements. Placement within the opening may require 
additional cabinet depth.
PROF366QBXT 
PROF365QBXT 
PROF365QXE
MAST366QBXT 
MAST365QBXT 
MAST365QXE










