Design Guide

140 bertazzoni.com
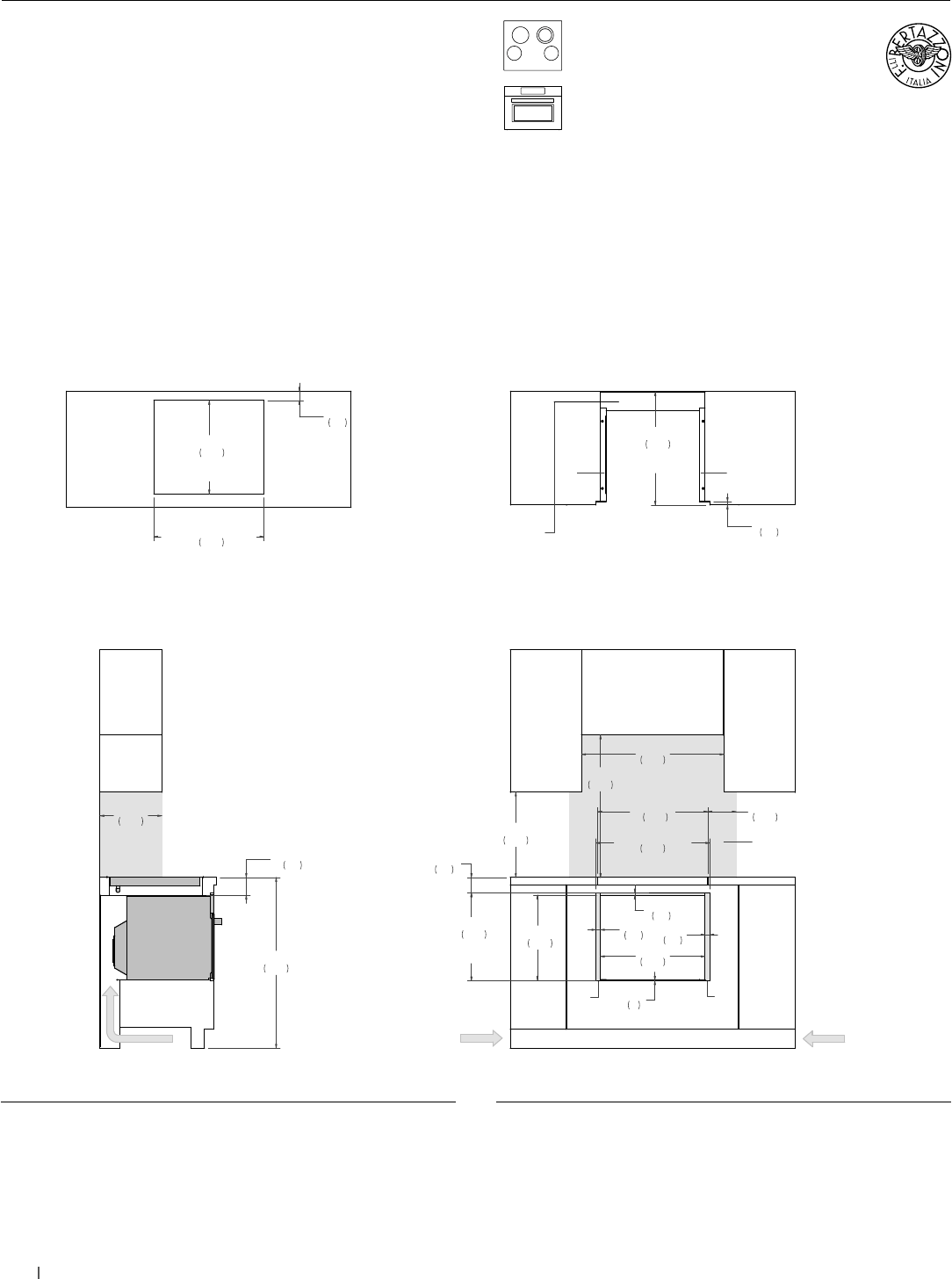
SIDE VIEW 
FRONT VIEW
(a)  Spacers – Included with appliance 
(b)  Visible Area – Match finish to outside cabinet panels 
(c)  Combustible material cannot be installed within shaded area
TOP VIEW – OVEN DETAIL TOP VIEW – COOKTOP DETAIL 
a
b
b
18"
457
30"
763
30"
762
6"
152
36"
914
17 7/8"
455
24"
610
FLUSH INSET
WIDTH
18 1/2"
470
FLUSH INSET
HEIGHT
1"
25
1"
25
1/8"
3
1/2"
12
22"
560
23 7/8"
606
FLUSH INSET
DEPTH
a
c
3 1/4"
83
23 1/4"
590
4" x 22"
(102 x 560)
AIR INTAKE
AIR INTAKE
4" x 15"
(102 x 380)
AIR INTAKE
4" x 15"
(102 x 380)
AIR INTAKE
3 3/4"
95
23 1/4"
590
COOKTOP
CUT-OUT WIDTH
19 5/8"
500
COOKTOP
CUT-OUT DEPTH
2"
50
13"
330
3/4"
19
(a)  Spacers - Included with appliance
(b)  Visible Area - Match finish to outside cabinet panels
(c)  Combustible material cannot be installed within shaded area
24” Specialty Oven +
24” Electric Ceramic Cooktop
Flush installation
MULTIPLE INSTALLATIONS - 24” OVEN AND COOKTOP UNDERCOUNTER CONFIGURATIONS
PE244CER PROF24SOEX
For electrical and gas supply please see single installation 
requirements. Placement within the opening may require 
additional cabinet depth.










