Design Guide

129bertazzoni.com
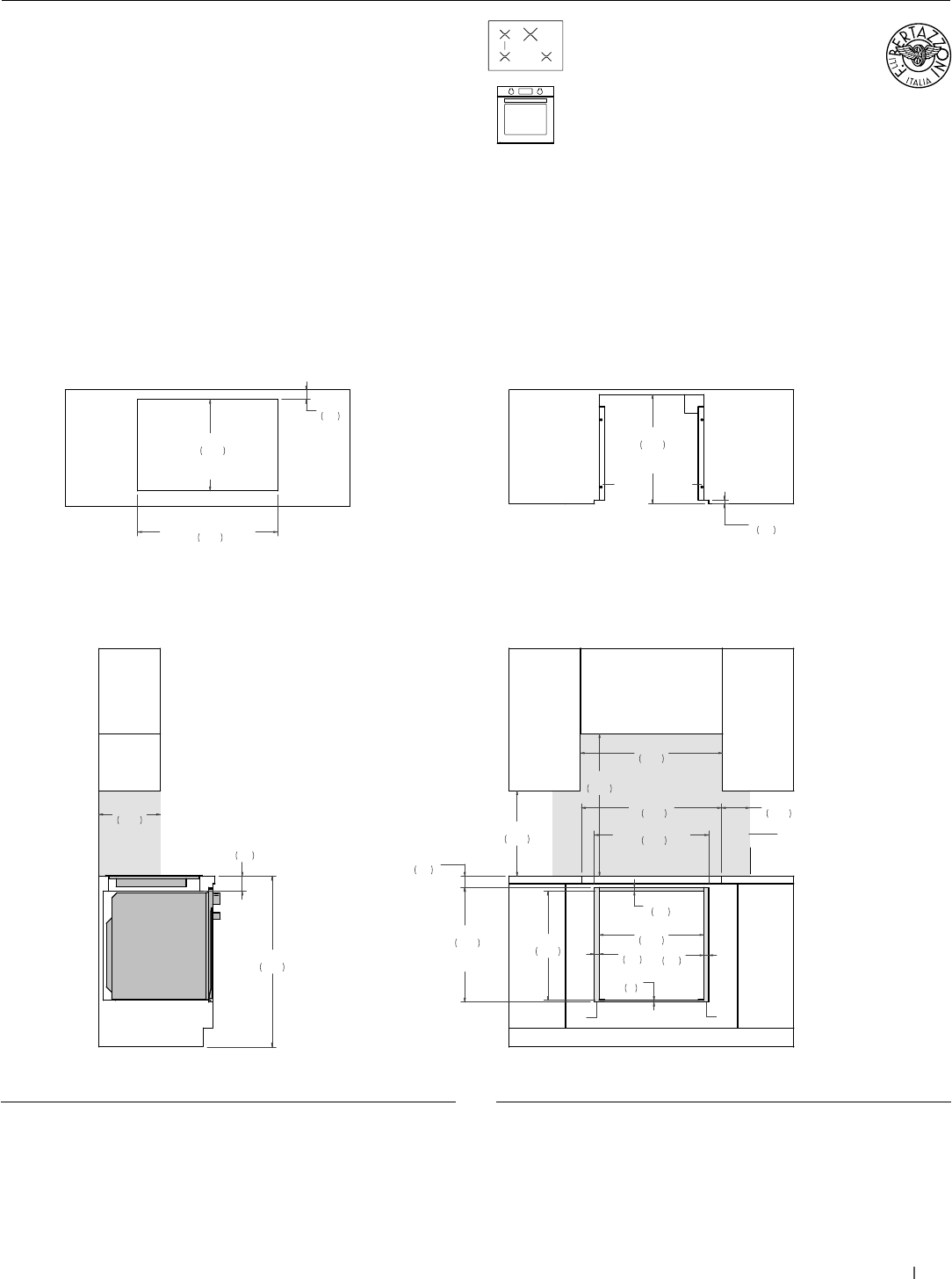
24” Convection Oven +
30” Induction Cooktop
Flush installation
SIDE VIEW 
FRONT VIEW
TOP VIEW – OVEN DETAIL TOP VIEW – COOKTOP DETAIL 
(a)  Spacers – Included with appliance 
(b)  Visible Area – Match finish to outside cabinet panels 
(c)  Combustible material cannot be installed within shaded area
a
b
b
a
18"
457
30"
763
30"
762
6"
152
36"
914
13"
330
23"
585
24 1/8"
612
FLUSH INSET
WIDTH
24 1/8"
614
FLUSH INSET
HEIGHT
1"
26
1"
26
3/8"
9
3/4"
20
22"
560
23"
585
FLUSH INSET
DEPTH
c
2 3/8"
60
29 1/2"
750
19 1/4"
490
COOKTOP
CUT-OUT DEPTH
29 1/2"
750
COOKTOP
CUT-OUT WIDTH
2"
51
3 1/8"
80
3/4"
20
(a)  Spacers - Included with appliance
(b)  Visible Area - Match finish to outside cabinet panels
(c)  Combustible material cannot be installed within shaded area
MULTIPLE INSTALLATIONS - 24” OVEN AND COOKTOP UNDERCOUNTER CONFIGURATIONS
PROF24FSEXV P304IAE
For electrical and gas supply please see single installation 
requirements. Placement within the opening may require 
additional cabinet depth.










