Design Guide

123bertazzoni.com
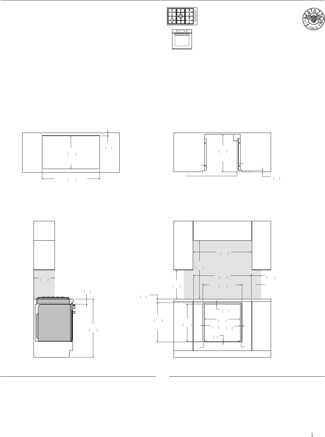
24” Convection Oven +
36” Drop-in Cooktop
Flush installation
SIDE VIEW 
FRONT VIEW
(a)  Spacers – Included with appliance 
(b)  Visible Area – Match finish to outside cabinet panels 
(c)  Combustible material cannot be installed within shaded area
TOP VIEW – OVEN DETAIL TOP VIEW – COOKTOP DETAIL 
a
b
b
a
18"
457
36"
915
36 3/8"
925
6"
152
3 1/8"
80
36"
914
13"
330
23"
585
24 1/8"
612
FLUSH INSET
WIDTH
24 1/8"
614
FLUSH INSET
HEIGHT
1"
26
1"
26
3/8"
9
3/4"
20
22"
560
23"
585
FLUSH INSET
DEPTH
c
2 3/8"
60
35 5/8"
905
4" x 4"
(102 x 102)
CUT OUT SLOT
FOR POWER CORD
3/4"
20
35 5/8"
905
COOKTOP
CUT-OUT WIDTH
20 1/2"
520
COOKTOP 
CUT-OUT DEPTH
1 3/4"
45
(a)  Spacers - Included with appliance
(b)  Visible Area - Match finish to outside cabinet panels
(c)  Combustible material cannot be installed within shaded area
MULTIPLE INSTALLATIONS - 24” OVEN AND COOKTOP UNDERCOUNTER CONFIGURATIONS
PROF24FSEXV PROF366QBXT 
PROF365QBXT 
PRO365QXE
MAST366QBXT 
MAST365QBXT 
MAST365QXE
For electrical and gas supply please see single installation 
requirements. Placement within the opening may require 
additional cabinet depth.










