Design Guide

117 bertazzoni.com
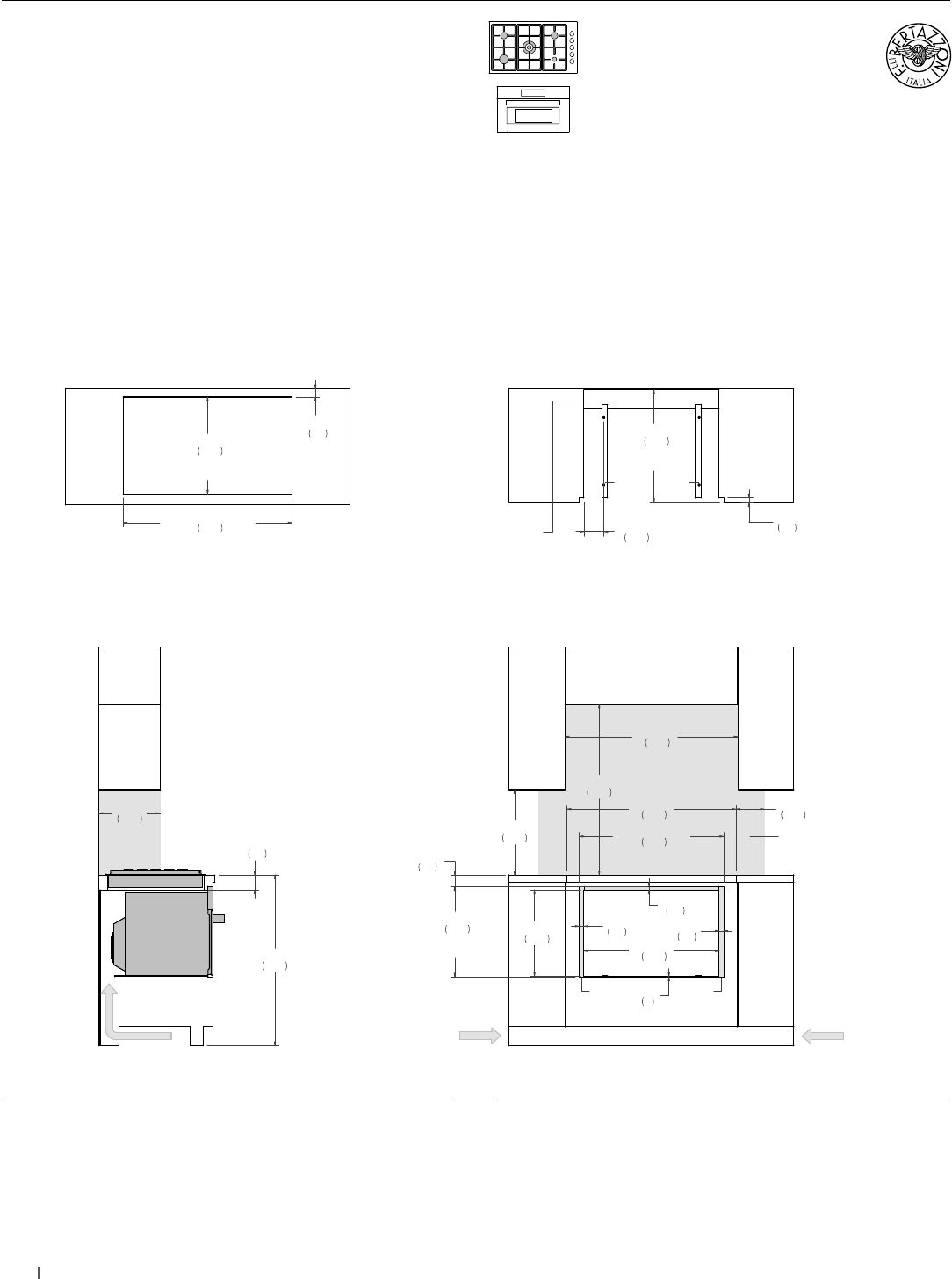
30” Specialty Oven +
36” Drop-in Cooktop
Flush installation
SIDE VIEW 
FRONT VIEW
(a)  Spacers – Included with appliance 
(b)  Visible Area – Match finish to outside cabinet panels 
(c)  Combustible material cannot be installed within shaded area
TOP VIEW – OVEN DETAIL TOP VIEW – COOKTOP DETAIL 
AIR INTAKE
a
bb
18"
457
36"
915
36 3/8"
925
6"
152
3 1/8"
80
36"
914
13"
330
18 1/4"
464
30 1/2"
774
FLUSH INSET
WIDTH
19 1/8"
485
FLUSH INSET
HEIGHT
1"
25
1"
25
1/8"
3
3/4"
18
28 1/2"
724
23 3/4"
603
FLUSH INSET
DEPTH
a
4 1/4"
107
c
2 1/2"
62
35 5/8"
905
4" x 28 1/2"
(102 x 724)
AIR INTAKE
AIR INTAKE
4" x 15"
(102 x 380)
AIR INTAKE
4" x 15"
(102 x 380)
1"
25
35 5/8"
905
COOKTOP
CUT-OUT WIDTH
20 1/2"
520
COOKTOP 
CUT-OUT DEPTH
1 3/4"
45
(a)  Spacers - Included with appliance
(b)  Visible Area - Match finish to outside cabinet panels
(c)  Combustible material cannot be installed within shaded area
MULTIPLE INSTALLATIONS - 30” OVEN AND COOKTOP UNDERCOUNTER CONFIGURATIONS
PROF30SOEX 
PROF30CSEX 
MAST30SOEX 
MAST30CSEX
PROF366QBXT 
PROF365QBXT 
PRO365QXE
MAST366QBXT 
MAST365QBXT 
MAST365QXE
For electrical and gas supply please see single installation 
requirements. Placement within the opening may require 
additional cabinet depth.










