Design Guide

112 bertazzoni.com
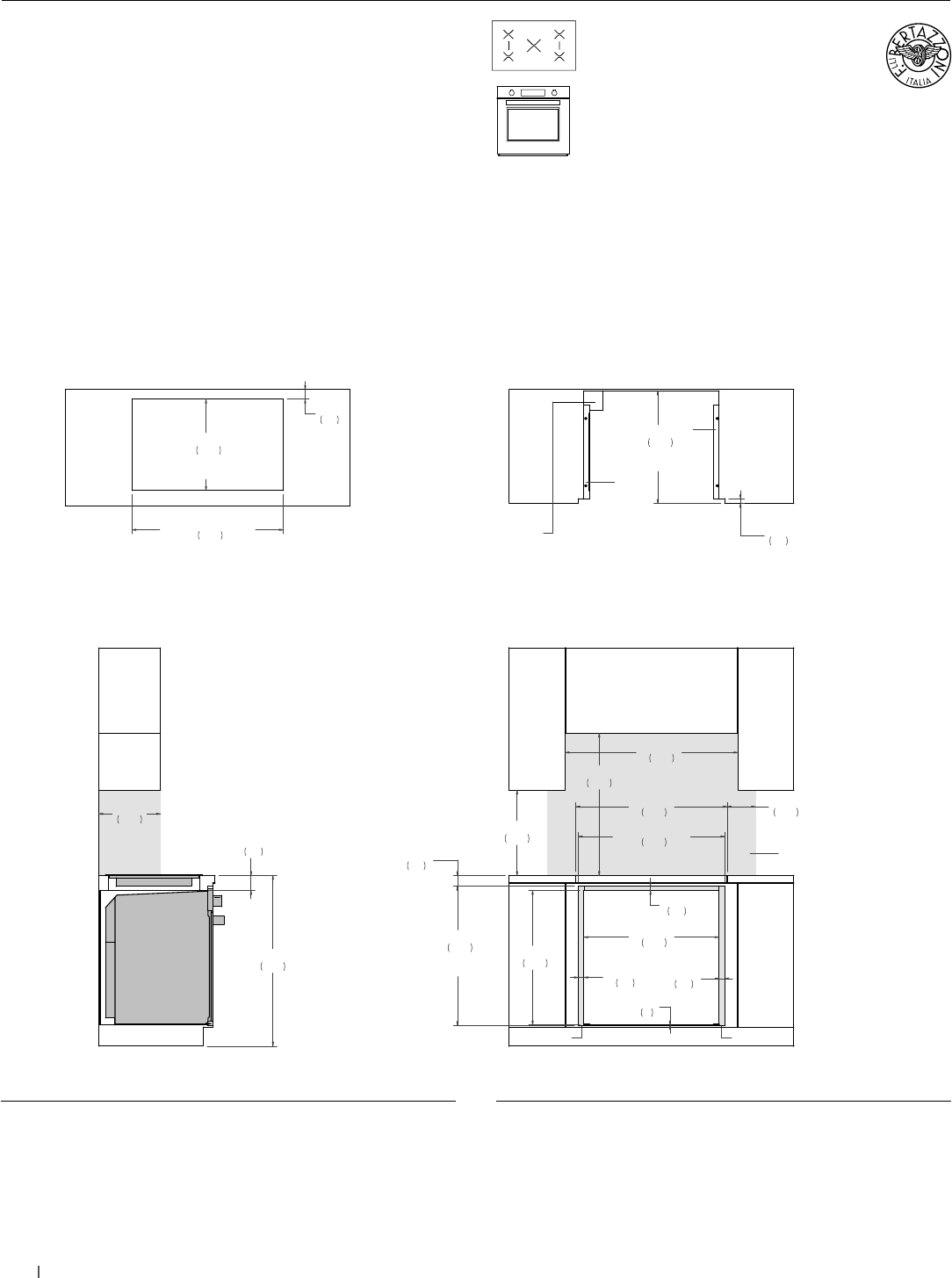
30” Convection Oven +
36” Induction Cooktop
Flush installation non vented
SIDE VIEW 
FRONT VIEW
(a)  Spacers – Included with appliance 
(b)  Visible Area – Match finish to outside cabinet panels 
(c)  Combustible material cannot be installed within shaded area
TOP VIEW – OVEN DETAIL TOP VIEW – COOKTOP DETAIL 
a
b
b
a
18"
457
30"
763
36 3/8"
925
3 1/8"
80
36"
914
13"
330
28 3/8"
720
30 7/8"
784
FLUSH INSET
WIDTH
29 3/8"
746
FLUSH INSET
HEIGHT
1 1/8"
30
1 1/8"
30
1/8"
3
7/8"
23
28 1/2"
724
23 3/4"
603
FLUSH INSET
DEPTH
c
2 1/4"
57
31 7/8"
810
4" x 4"
(102 x 102)
CUT OUT SLOT
FOR POWER CORD
6"
152
31 7/8"
810
COOKTOP
CUT-OUT WIDTH
19 1/4"
490
COOKTOP
CUT-OUT DEPTH
2"
51
1"
25
(a)  Spacers - Included with appliance
(b)  Visible Area - Match finish to outside cabinet panels
(c)  Combustible material cannot be installed within shaded area
MULTIPLE INSTALLATIONS - 30” OVEN AND COOKTOP UNDERCOUNTER CONFIGURATIONS
P365IAE PROF30FSEXT 
PROF30FSEXV
MAST30FSEXT 
MAST30FSEXV
For electrical and gas supply please see single installation 
requirements. Placement within the opening may require 
additional cabinet depth.










