Design Guide

104 bertazzoni.com
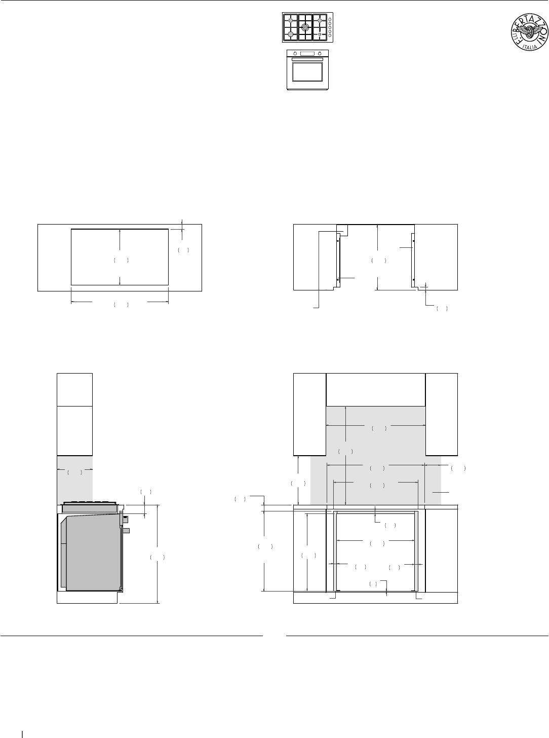
30” Convection Oven +
36” Drop-in Cooktop
Flush installation non vented
SIDE VIEW 
FRONT VIEW
(a)  Spacers – Included with appliance 
(b)  Visible Area – Match finish to outside cabinet panels 
(c)  Combustible material cannot be installed within shaded area
TOP VIEW – OVEN DETAIL TOP VIEW – COOKTOP DETAIL 
a
b
b
a
18"
457
36"
915
36 3/8"
925
3 1/8"
80
36"
914
13"
330
28 3/8"
720
30 7/8"
784
FLUSH INSET
WIDTH
29 3/8"
746
FLUSH INSET
HEIGHT
1 1/8"
30
1 1/8"
30
1/8"
3
7/8"
23
28 1/2"
724
23 3/4"
603
FLUSH INSET
DEPTH
c
2 1/4"
57
35 5/8"
905
6"
152
4" x 4"
(102 x 102)
CUT-OUT SLOT
FOR POWER-CORD
35 5/8"
905
COOKTOP
CUT-OUT WIDTH
20 1/2"
520
COOKTOP 
CUT-OUT DEPTH
1 3/4"
45
1"
25
(a)  Spacers - Included with appliance
(b)  Visible Area - Match finish to outside cabinet panels
(c)  Combustible material cannot be installed within shaded area
MULTIPLE INSTALLATIONS - 30” OVEN AND COOKTOP UNDERCOUNTER CONFIGURATIONS
PROF366QBXT 
PROF365QBXT 
PROF365QXE
MAST366QBXT 
MAST365QBXT 
MAST365QXE
For electrical and gas supply please see single installation 
requirements. Placement within the opening may require 
additional cabinet depth.
MAST30FSEXT 
MAST30FSEXV
PROF30FSEXT 
PROF30FSEXV










