Design Guide

101bertazzoni.com
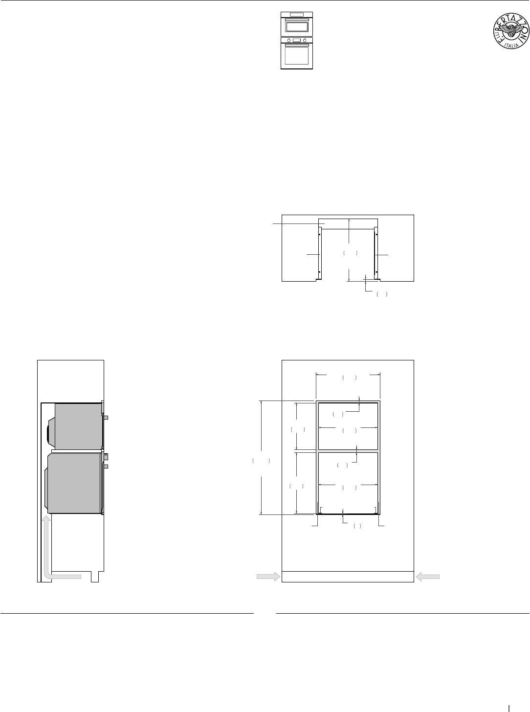
24” Specialty Oven +
24” Convection Single Oven
Flush installation
SIDE VIEW
FRONT VIEW
TOP VIEW
(a) Spacers – Included with appliance
(b) Visible Area – Match finish to outside cabinet panels
AIR INTAKE
a
b
b
a
a
a
17 3/4"
451
23"
585
1 1/8"
28
22 3/8"
568
3/4"
20
22 3/8"
568
43"
1092
FLUSH INSET
HEIGHT
24 3/8"
619
FLUSH INSET
WIDTH
3/8"
9
23 3/4"
603
FLUSH INSET
DEPTH
3/4"
20
4" x 22"
(102 x 560)
AIR INTAKE
AIR INTAKE
4" x 15"
(102 x 380)
AIR INTAKE
4" x 15"
(102 x 380)
(a) Spacers - Included with appliance
(b) Visible Area - Match finish to outside cabinet panels
MULTIPLE INSTALLATIONS - 24” OVENS WALL CONFIGURATIONS
For electrical and gas supply please see single installation
requirements. Placement within the opening may require
additional cabinet depth.
PROF24SOEX
PROF24FSEXV










