Design Guide

88 bertazzoni.com
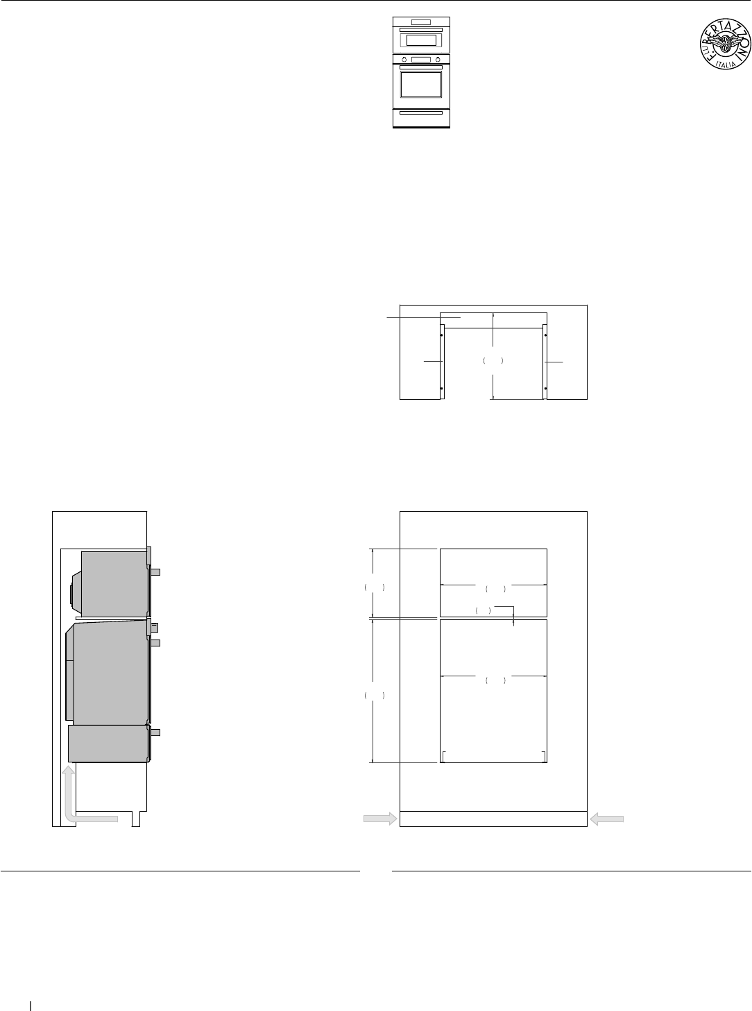
30” Specialty Oven +
30” Convection Single Oven +
30” Warming Drawer
Proud installation
(a) Spacers - Included with appliance
SIDE VIEW
FRONT VIEW
TOP VIEW
(a) Spacers Included with appliance
AIR INTAKE
28 1/2"
724
28 1/2"
724
18 1/4"
464
38 1/4"
971
5/8"
16
23"
585
DEPTH
a
a
a
a
4" x 28 1/2"
(102 x 724)
AIR INTAKE
AIR INTAKE
4" x 15"
(102 x 380)
AIR INTAKE
4" x 15"
(102 x 380)
MULTIPLE INSTALLATIONS - 30” OVENS WALL CONFIGURATIONS
PROF30SOEX
PROF30CSEX
MAST30SOEX
MAST30CSEX
PROF30FSEXT
PROF30FSEXV
MAST30FSEXT
MAST30FSEXV
PROF30WDEX
MAST30WDEX
For electrical and gas supply please see single installation
requirements. Placement within the opening may require
additional cabinet depth.