Design Guide

94 bertazzoni.com
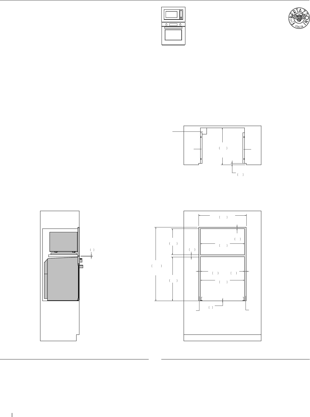
30” Microwave +
30” Convection Single Oven
Flush installation vented
(a) Spacers - Included with appliance
(b) Visible Area - Match finish to outside cabinet panels
SIDE VIEW
FRONT VIEW
TOP VIEW
(a) Spacers – Included with appliance
(b) Visible Area – Match finish to outside cabinet panels
28 1/2"
724
30 7/8"
784
FLUSH INSET
WIDTH
47 5/8"
1209
FLUSH INSET
HEIGHT
28 3/8"
720
1 1/8"
30
1 1/8"
30
1/8"
3
23 7/8"
606
FLUSH INSET
DEPTH
a
b
b
a
5/16"
8
16 7/8"
428
7/8"
23
1 3/8"
35
28 1/2"
724
1"
25
a a
4" x 4"
(102 x 102)
CUT OUT SLOT
FOR POWER CORD
MULTIPLE INSTALLATIONS - 30” OVENS WALL CONFIGURATIONS
MO30STANE PROF30FSEXT
PROF30FSEXV
MAST30FSEXT
MAST30FSEXV
For electrical and gas supply please see single installation
requirements. Placement within the opening may require
additional cabinet depth.










