Design Guide

24 bertazzoni.com
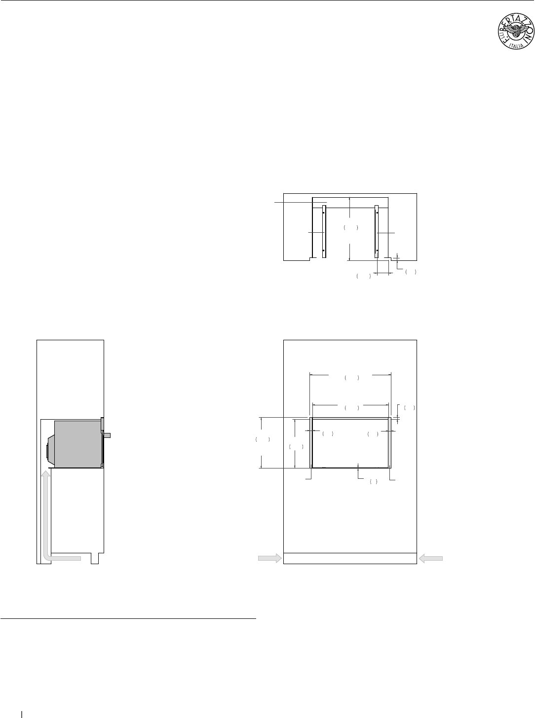
30” Convection Speed Ovens
Flush installation
SIDE VIEW
FRONT VIEW
TOP VIEW
(a) Spacers Included with appliance
(b) Visible Area Match finish to outside cabinet panels
AIR INTAKE
28 1/2"
724
30 1/2"
774
FLUSH INSET
WIDTH
18 1/4"
464
19 1/8"
485
FLUSH INSET
HEIGHT
1"
25
1"
25
3/4"
18
1/8"
3
23 3/4"
603
FLUSH INSET
DEPTH
1"
25
a
a
b
b
AIR INTAKE
4" x 15"
(102 x 380)
AIR INTAKE
4" x 15"
(102 x 380)
4" x 28 1/2"
(102 x 724)
AIR INTAKE
4 1/4"
107
SPECIALTY OVENS
(a) Spacers - Included with appliance
(b) Visible Area - Match finish to outside cabinet panels