Design Guide

146 bertazzoni.com
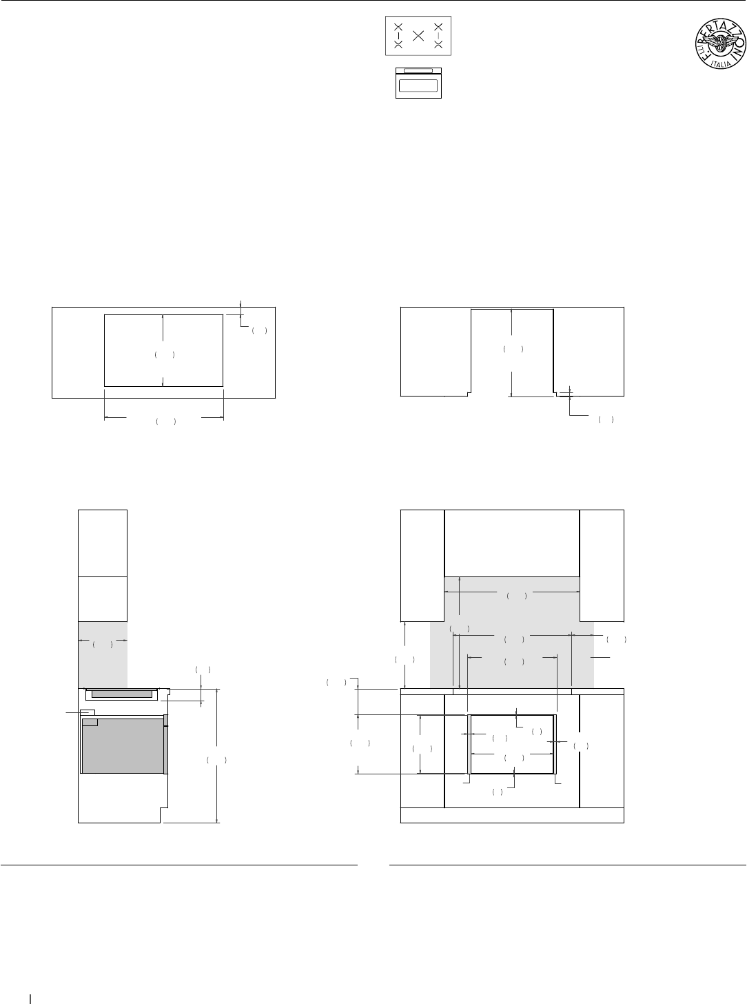
24” Microwave Drawer +
36” Induction Cooktop
Flush installation
SIDE VIEW
FRONT VIEW
(a) Visible Area – Match finish to outside cabinet panels
(b) Combustible material cannot be installed within shaded area
TOP VIEW – OVEN DETAIL TOP VIEW – COOKTOP DETAIL
a
a
18"
457
30"
763
36 3/8"
925
6"
152
36"
914
13"
330
15 1/2"
395
23 7/8"
608
FLUSH INSET
WIDTH
15 7/8"
404
FLUSH INSET
HEIGHT
7/8"
23
7/8"
23
1/8"
3
1/4"
6
22 1/8"
562
23 1/2"
597
FLUSH INSET
DEPTH
b
6 7/8"
176
31 7/8"
810
3 1/8"
80
31 7/8"
810
COOKTOP
CUT-OUT WIDTH
19 1/4"
490
COOKTOP
CUT-OUT DEPTH
2"
51
ANTI TIP
1 1/8"
28
(a) Visible Area - Match finish to outside cabinet panels
(b) Combustible material cannot be installed within shaded area
MULTIPLE INSTALLATIONS - 24” OVEN AND COOKTOP UNDERCOUNTER CONFIGURATIONS
P365IAE
For electrical and gas supply please see single installation
requirements. Placement within the opening may require
additional cabinet depth.
MD24X










