Design Guide

142 bertazzoni.com
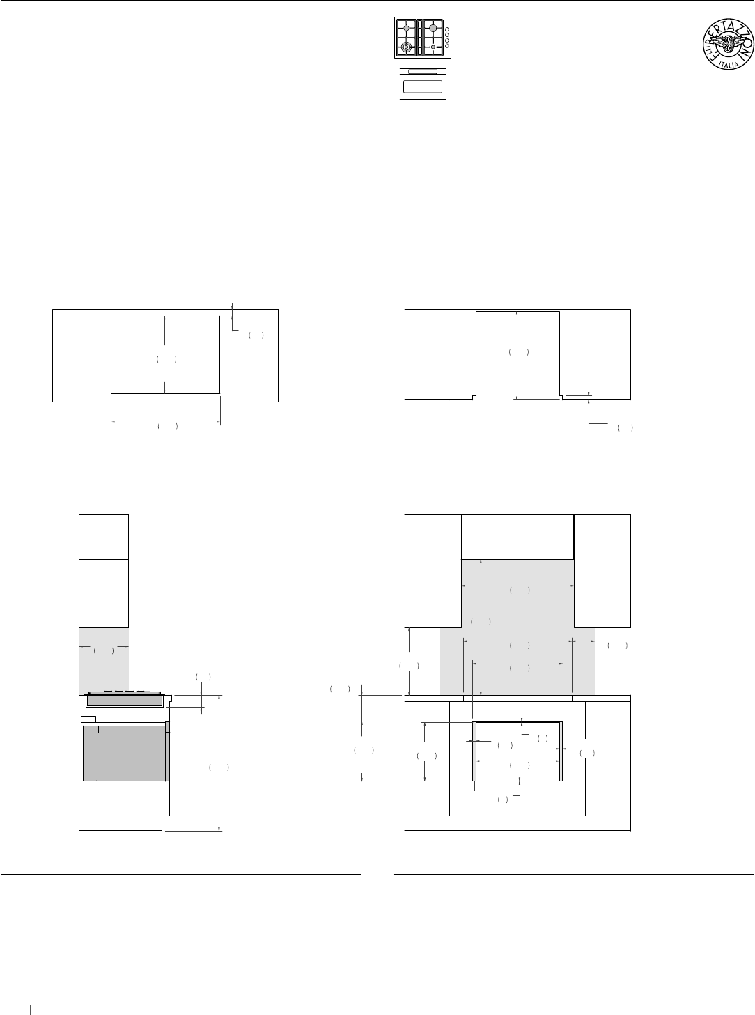
SIDE VIEW
FRONT VIEW
(a) Visible Area – Match finish to outside cabinet panels
(b) Combustible material cannot be installed within shaded area
TOP VIEW – OVEN DETAIL TOP VIEW – COOKTOP DETAIL
a
a
18"
457
36"
915
30"
762
6"
152
3 1/8"
80
36"
914
13"
330
15 1/2"
395
23 7/8"
608
FLUSH INSET
WIDTH
15 7/8"
404
FLUSH INSET
HEIGHT
7/8"
23
7/8"
23
1/8"
3
1/4"
6
22 1/8"
562
23 1/2"
597
FLUSH INSET
DEPTH
b
6 7/8"
176
28 7/8"
735
1 1/8"
28
28 7/8"
735
COOKTOP
CUT-OUT WIDTH
20 1/2"
520
COOKTOP
CUT-OUT DEPTH
1 3/4"
45
ANTI TIP
(a) Visible Area - Match finish to outside cabinet panels
(b) Combustible material cannot be installed within shaded area
24” Microwave Drawer +
30” Drop-in Cooktop
Flush installation
MULTIPLE INSTALLATIONS - 24” OVEN AND COOKTOP UNDERCOUNTER CONFIGURATIONS
MD24X
For electrical and gas supply please see single installation
requirements. Placement within the opening may require
additional cabinet depth.
PROF304QBXT
PROF304QXE
MAST304QBXT
MAST304QXE










