Design Guide

128 bertazzoni.com
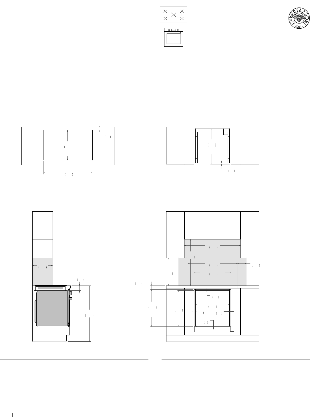
24” Convection Oven +
36” Induction Cooktop
Flush installation
SIDE VIEW
FRONT VIEW
(a) Spacers – Included with appliance
(b) Visible Area – Match finish to outside cabinet panels
(c) Combustible material cannot be installed within shaded area
TOP VIEW – OVEN DETAIL TOP VIEW – COOKTOP DETAIL
a
b
b
a
18"
457
30"
763
36 3/8"
925
6"
152
36"
914
13"
330
23"
585
24 1/8"
612
FLUSH INSET
WIDTH
24 1/8"
614
FLUSH INSET
HEIGHT
1"
26
1"
26
3/8"
9
3/4"
20
22"
560
23"
585
FLUSH INSET
DEPTH
c
2 3/8"
60
31 7/8"
810
31 7/8"
810
COOKTOP
CUT-OUT WIDTH
19 1/4"
490
COOKTOP
CUT-OUT DEPTH
2"
51
1"
25
3 1/8"
80
(a) Spacers - Included with appliance
(b) Visible Area - Match finish to outside cabinet panels
(c) Combustible material cannot be installed within shaded area
MULTIPLE INSTALLATIONS - 24” OVEN AND COOKTOP UNDERCOUNTER CONFIGURATIONS
PROF24FSEXV P365IAE
For electrical and gas supply please see single installation
requirements. Placement within the opening may require
additional cabinet depth.










