Design Guide

122bertazzoni.com
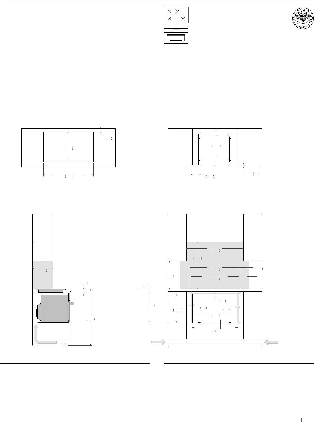
30” Specialty Oven +
30” Induction Cooktop
Flush installation
SIDE VIEW
FRONT VIEW
(a) Spacers Included with appliance
(b) Visible Area Match finish to outside cabinet panels
(c) Combustible material cannot be installed within shaded area
TOP VIEW – OVEN DETAIL TOP VIEW – COOKTOP DETAIL
AIR INTAKE
a
bb
18"
457
30"
763
36 3/8"
925
6"
152
3 1/8"
80
36"
914
13"
330
18 1/4"
464
30 1/2"
774
FLUSH INSET
WIDTH
19 1/8"
485
FLUSH INSET
HEIGHT
1"
25
1"
25
1/8"
3
3/4"
18
28 1/2"
724
23 7/8"
606
FLUSH INSET
DEPTH
a
4 1/4"
107
c
2 1/2"
62
31 7/8"
810
1"
25
AIR INTAKE
4" x 15"
(102 x 380)
AIR INTAKE
4" x 15"
(102 x 380)
31 7/8"
810
COOKTOP
CUT-OUT WIDTH
19 1/4"
490
COOKTOP
CUT-OUT DEPTH
2"
51
(a) Spacers - Included with appliance
(b) Visible Area - Match finish to outside cabinet panels
(c) Combustible material cannot be installed within shaded area
MULTIPLE INSTALLATIONS - 30” OVEN AND COOKTOP UNDERCOUNTER CONFIGURATIONS
PROF30SOEX
PROF30CSEX
MAST30SOEX
MAST30CSEX
P304IAE
For electrical and gas supply please see single installation
requirements. Placement within the opening may require
additional cabinet depth.