Design Guide

105bertazzoni.com
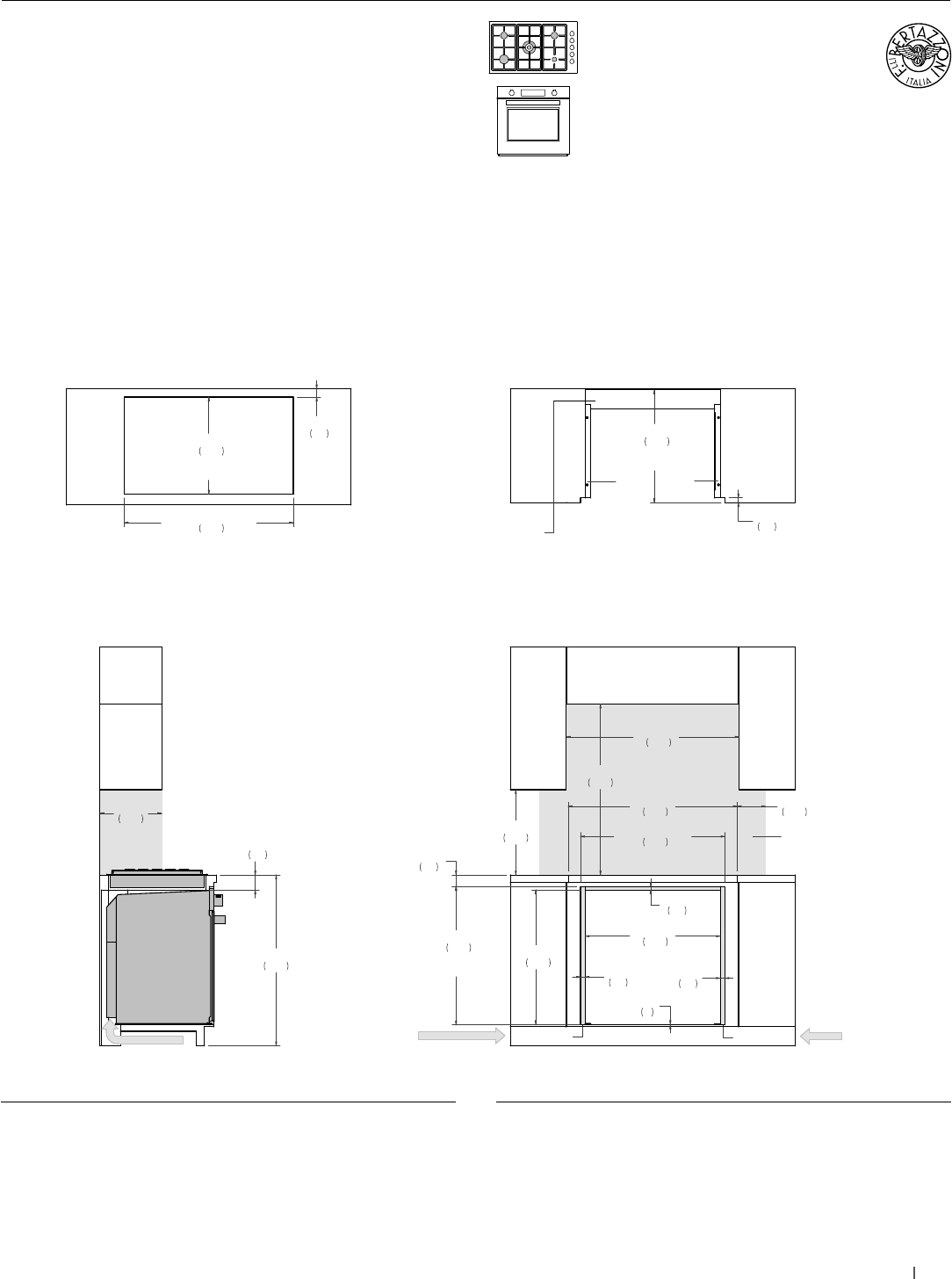
30” Convection Oven +
36” Drop-in Cooktop
Flush installation vented
SIDE VIEW
FRONT VIEW
TOP VIEW – OVEN DETAIL
(a) Spacers – Included with appliance
(b) Visible Area – Match finish to outside cabinet panels
(c) Combustible material cannot be installed within shaded area
TOP VIEW – COOKTOP DETAIL
AIR INTAKE
a
b
b
a
18"
457
36"
915
36 3/8"
925
6"
152
3 1/8"
80
36"
914
13"
330
28 3/8"
720
30 1/2"
774
FLUSH INSET
WIDTH
29 1/8"
741
FLUSH INSET
HEIGHT
1"
25
1"
25
1/8"
3
3/4"
18
28 1/2"
724
23 3/4"
603
FLUSH INSET
DEPTH
c
2 1/2"
62
35 5/8"
905
4" x 28 1/2"
(102 x 724)
AIR INTAKE
AIR INTAKE
3" x 16"
(77 x 406)
AIR INTAKE
3" x 16"
(77 x 406)
35 5/8"
905
COOKTOP
CUT-OUT WIDTH
20 1/2"
520
COOKTOP
CUT-OUT DEPTH
1 3/4"
45
1"
25
(a) Spacers - Included with appliance
(b) Visible Area - Match finish to outside cabinet panels
(c) Combustible material cannot be installed within shaded area
MULTIPLE INSTALLATIONS - 30” OVEN AND COOKTOP UNDERCOUNTER CONFIGURATIONS
PROF366QBXT
PROF365QBXT
PROF365QXE
MAST366QBXT
MAST365QBXT
MAST365QXE
For electrical and gas supply please see single installation
requirements. Placement within the opening may require
additional cabinet depth.
MAST30FSEXT
MAST30FSEXV
PROF30FSEXT
PROF30FSEXV










