Design Guide

10 bertazzoni.com
30” Electric Convection Single Ovens
Flush installation vented
WALL OVENS
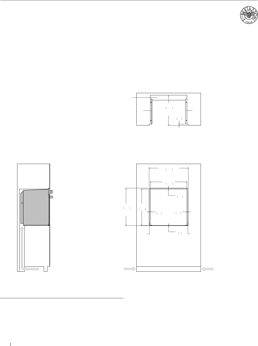
SIDE VIEW
FRONT VIEW
TOP VIEW
(a) Spacers – Included with appliance
(b) Visible Area – Match finish to outside cabinet panels
AIR INTAKE
28 1/2"
724
30 1/2"
774
FLUSH INSET
WIDTH
28 3/8"
720
29 1/8"
741
FLUSH INSET
HEIGHT
1"
25
1"
25
1/8"
3
3/4"
18
23 5/8"
600
FLUSH INSET
DEPTH
1"
25
b
b
a a
AIR INTAKE
4" x 15"
(102 x 380)
AIR INTAKE
4" x 15"
(102 x 380)
4" x 28 1/2"
(102 x 724)
AIR INTAKE
(a) Spacers - Included with appliance
(b) Visible Area - Match finish to outside cabinet panels










